Move-in-ready home with modern fittings and generous gardens near the beach.
Three bedrooms in a newly renovated detached bungalow
This newly renovated three-bedroom detached bungalow sits a short stroll from the Littlestone shoreline, offering easy beach access and low-maintenance living on a large plot. Interior decoration and modern fittings are a standout, with a contemporary kitchen, integrated appliances and neutral tones throughout—ideal for someone seeking a move-in-ready home close to the coast.
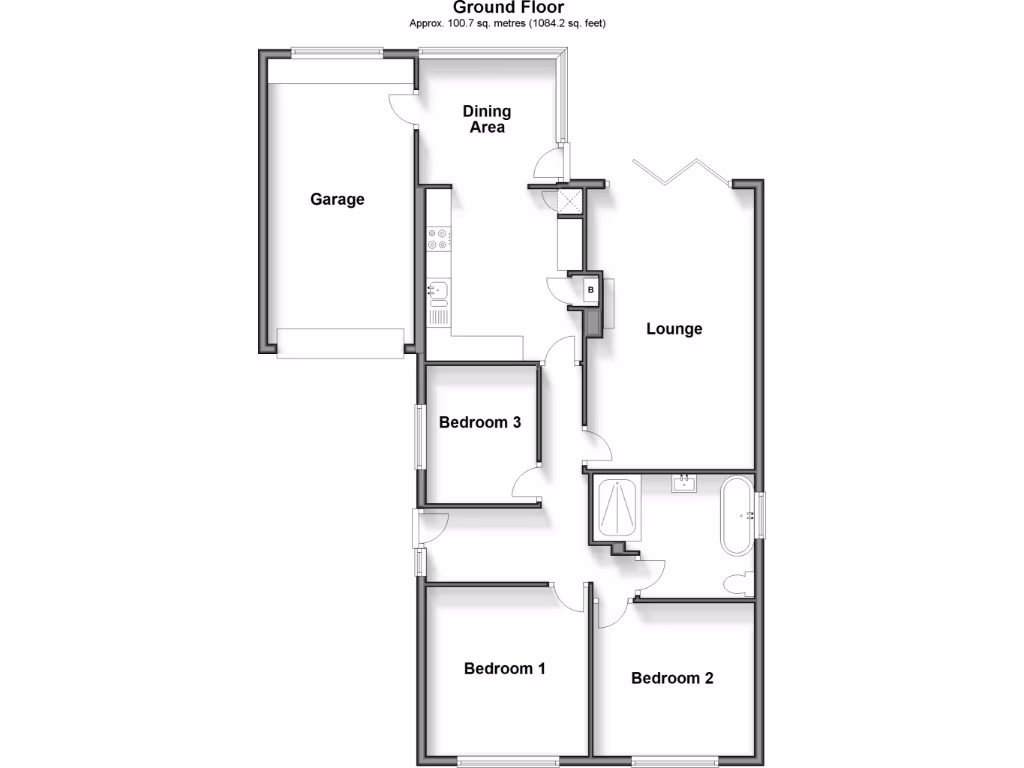
The layout is traditional and compact: a comfortable lounge, separate kitchen with dining area, three bedrooms and a single family bathroom. Practical extras include an attached garage, off-road parking and front and rear gardens arranged for entertaining. Fast broadband and low local crime add to everyday convenience while New Romney's shops, cafés and amenities are a short drive away.
Honest points to note: the overall internal size is small at about 680 sq ft and there is only one bathroom, which may feel tight for some households. The property was constructed in the late 1960s–1970s and cavity walls are assumed to be uninsulated, so buyers concerned about long-term energy performance may want to factor potential insulation or upgrade work into their plans.
This bungalow will suit downsizers or buyers seeking a coastal base who prioritise location, modern interior finish and outdoor entertaining space. Internal viewing is recommended to appreciate the quality of the fittings and the flexible use of the compact floorplan.
3 bedroom detached bungalow for sale in The Fairway, Littlestone, Kent, TN28 — £500,000 • 3 bed • 1 bath
3 bedroom semi-detached bungalow for sale in Pleasance Road North, Lydd-On-Sea, Romney Marsh, Kent, TN29 — £350,000 • 3 bed • 1 bath • 583 ft²
3 bedroom bungalow for sale in Drakes Lee, Littlestone, New Romney, Kent, TN28 — £450,000 • 3 bed • 2 bath • 773 ft²
2 bedroom bungalow for sale in Dymchurch Road, New Romney, Kent, TN28 — £300,000 • 2 bed • 1 bath • 763 ft²
3 bedroom detached bungalow for sale in Williamson Road, Lydd On Sea, Romney Marsh, Kent, TN29 — £375,000 • 3 bed • 2 bath • 937 ft²
3 bedroom detached house for sale in Anne Roper Close, New Romney, TN28 — £475,000 • 3 bed • 2 bath • 1047 ft²


























































































