**Standout Features:**
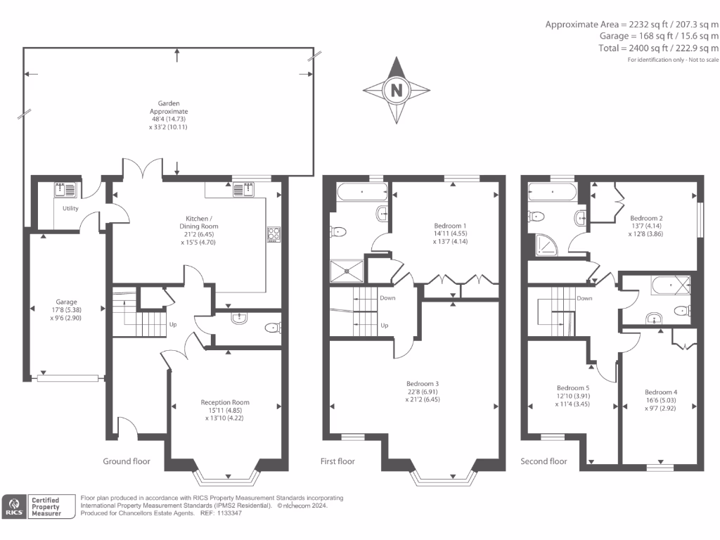
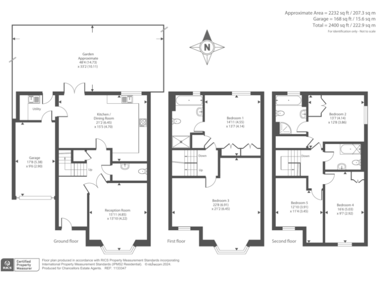
- Four spacious double bedrooms with ample living space across three floors
- Three bathrooms for family convenience
- Integral double garage and off-street parking
- Large garden with outdoor privacy and traditional charm
- Located in a highly sought-after area, just 4.4 miles from Oxford City Centre
- Chain-free sale for quick possession
- Excellent local schools, including top-rated independent options
**Notable Concerns:**
- Above-average crime rate in the local area
- Council tax is on the higher side
Located in the affluent neighborhood of Summertown, this impressive detached house is the perfect family home for those seeking space and comfort. With an expansive 2,400 square feet, the residence includes four generously sized double bedrooms, three bathrooms, and a large garden designed for outdoor living. Enjoy the utmost convenience with an integral double garage and a layout that caters to modern family life. The home is chain-free, allowing for a swift move-in.
The property benefits from outstanding local schools, making it a great choice for families. While an above-average crime rate might be a consideration, the fast broadband and excellent mobile signal cater to today’s connectivity needs. With Oxford Parkway Station just 1.4 miles away, commuting is effortless.
Don’t miss this opportunity to secure a sizable family home in a sought-after region that boasts both privacy and accessibility. This is a rare chance to create lasting memories in a property that harmonizes space, comfort, and potential for future enhancements. Schedule your viewing today!
4 bedroom detached house for sale in Summertown, Oxfordshire, OX2 — £995,000 • 4 bed • 1 bath • 1467 ft²
4 bedroom detached house for sale in Banbury Road, Oxford, OX2 — £1,250,000 • 4 bed • 2 bath • 2116 ft²
4 bedroom detached house for sale in Hawkswell Gardens, Summertown, Oxford, OX2 — £1,200,000 • 4 bed • 1 bath • 1750 ft²
4 bedroom detached house for sale in Blenheim Drive, Oxford, OX2 — £1,200,000 • 4 bed • 1 bath • 1494 ft²
4 bedroom semi-detached house for sale in Woodstock Road, Oxford, OX2 — £1,100,000 • 4 bed • 2 bath • 1782 ft²
4 bedroom detached house for sale in Apsley Road, Summertown, OX2 — £1,500,000 • 4 bed • 2 bath • 2149 ft²






































































