Low-maintenance woodland setting with private garden and parking.
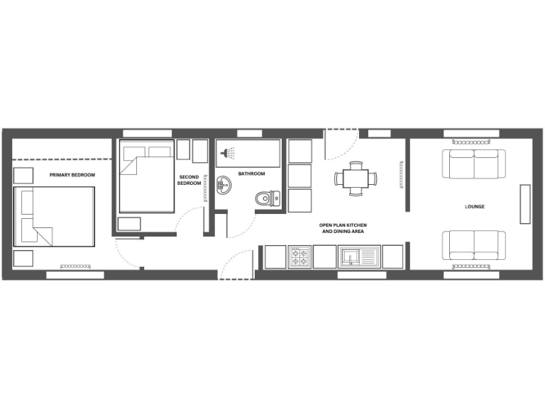
Brand-new furnished 2-bedroom park home, ready to move into
A brand-new, fully furnished two-bedroom park home designed for comfortable over-50s living. The compact 528 sq ft layout offers open-plan living, a modern fitted kitchen, two double bedrooms and a shower room — all finished to a contemporary specification and ready for immediate occupation.
Set in a quiet woodland park near Wilstead with a licensed clubhouse and like-minded neighbours, the home includes a private garden and off-street parking. Local shops, bus services to Bedford, and nearby countryside attractions provide convenience and leisure options while the area records very low crime and fast broadband.
Practical considerations are upfront: this is a park home on a virtual freehold (land leased), typically not mortgageable, and subject to site fees and ground rent. The current ground rent is £3,300pa and the site fee is £275pcm. The home’s compact footprint and single bathroom suit downsizers or those seeking low-maintenance living rather than large-family accommodation.
2 bedroom park home for sale in Bedford, Bedfordshire, MK45 — £290,000 • 2 bed • 2 bath • 800 ft²
1 bedroom park home for sale in Silver Birch Avenue, Wilstead, MK45 — £115,000 • 1 bed • 1 bath
1 bedroom park home for sale in Briar Bank Park, Wilstead, MK45 — £65,000 • 1 bed • 1 bath
2 bedroom park home for sale in Maulden, Bedford, MK45 2FL, MK45 — £295,000 • 2 bed • 2 bath • 800 ft²
2 bedroom park home for sale in Shefford, Bedfordshire, SG17 — £325,000 • 2 bed • 2 bath • 800 ft²
2 bedroom park home for sale in Brookside Park, Bromham, MK43 — £139,995 • 2 bed • 1 bath


















































