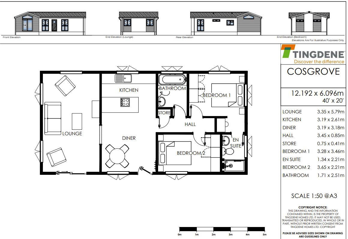
**Standout Features:**
- Brand new, fully furnished modern park home (40'x20')
- Two bedrooms with one en suite and a separate bathroom
- Contemporary kitchen with integrated appliances and stylish finishes
- Located in a tranquil, pet-free residential park for over 25s
- Community-focused living with nearby bus stop and local amenities
- Part-exchange option available
- Affluent area with low council tax rates
**Summary:**
Discover modern living in this brand-new, fully furnished park home, perfectly designed for those over 25 seeking a peaceful community atmosphere. With two comfortable bedrooms, including an en suite, and a stylish, equipped kitchen complemented by cozy living spaces, this home offers an ideal blend of comfort and practicality. Set within a serene countryside park surrounded by farmland, you’ll enjoy tranquility with nature walks and a wildlife pond right at your doorstep.
The exclusive park enhances your lifestyle with essential village amenities just a stone's throw away in Clifton—awarded 'Village of the Year'—and Shefford's historic market town is only a mile away. Although pets are not allowed to maintain the peaceful environment, your comfort and security are paramount. With a competitive price of £325,000 and low council tax, now is the perfect time to seize this unique opportunity to live in a modern retreat in an idyllic setting. Don’t miss out—this exceptional home is set to attract attention quickly.
2 bedroom park home for sale in Shefford, Bedfordshire, SG17 — £300,000 • 2 bed • 2 bath
2 bedroom park home for sale in New Road, Clifton, SG17 — £325,000 • 2 bed • 2 bath • 800 ft²
2 bedroom park home for sale in Clifton Park, Shefford, SG17 — £325,000 • 2 bed • 2 bath
2 bedroom mobile home for sale in New Road, Clifton, SG17 — £255,000 • 2 bed • 2 bath • 1046 ft²
2 bedroom park home for sale in Bedford, Bedfordshire, MK45 — £290,000 • 2 bed • 2 bath • 800 ft²
2 bedroom mobile home for sale in New Road, Clifton, Shefford, SG17 5SJ, SG17 — £210,000 • 2 bed • 2 bath • 800 ft²






















































