Compact modern flat with rare private rooftop outdoor space, ideal for first buyers.
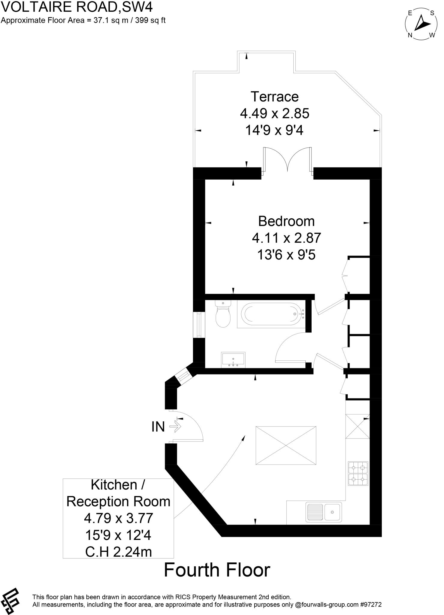
- Top-floor one-bedroom with private demised roof terrace
- Compact footprint: approximately 399 sq ft
- Open-plan kitchen/reception with skylight and fitted units
- Bedroom opens directly onto the terrace
- Air conditioning and modern bathroom and kitchen
- Timber-frame walls assumed uninsulated; consider insulation work
- Double glazing installed before 2002 (may affect heat loss)
- Area records very high crime; buyers should assess security
Set on the top floor of a handsome period building on Voltaire Road, this bright one-bedroom apartment offers compact, modern living with a private demised roof terrace. The open-plan kitchen/reception benefits from a skylight and fitted units, creating a light, efficient space for daily living and entertaining.
The double bedroom opens directly onto the roof terrace, extending living space outdoors and providing rooftop views across Clapham. The flat is presented in good condition with wooden flooring, a contemporary bathroom, fitted kitchen and air conditioning for year-round comfort.
Practical points to note: the flat is small at about 399 sq ft, so storage and large furniture will be limited. The building has timber-frame walls assumed to have no insulation, and the double glazing was installed before 2002, which may affect thermal performance and running costs. Crime levels in the immediate area are reported as very high, which some buyers will want to factor into their decision.
Well placed for transport, the location is moments from Clapham High Street, Clapham North (Northern Line) and Clapham High Street Overground, with cafes, shops and Clapham Common nearby. Offered on a long lease (circa 99 years remaining), this apartment suits a first-time buyer or an investor seeking a low-maintenance, city-centre pied-à-terre with rare private outdoor space.
1 bedroom flat for sale in Boutflower Road, Battersea, London, SW11 — £525,000 • 1 bed • 1 bath • 437 ft²
1 bedroom apartment for sale in Sandmere Road, London, SW4 — £415,000 • 1 bed • 1 bath • 506 ft²
1 bedroom flat for sale in Abbeville Road, SW4 — £400,000 • 1 bed • 1 bath • 322 ft²
2 bedroom apartment for sale in Limburg Road, London, SW11 — £850,000 • 2 bed • 2 bath • 859 ft²
1 bedroom flat for sale in Stockwell Road, SW9 — £450,000 • 1 bed • 1 bath • 560 ft²
1 bedroom flat for sale in Bicycle Mews, London, SW4 — £475,000 • 1 bed • 1 bath • 507 ft²














































