Period charm with modern renovation and direct garden access near Highgate Village.
Large two-bedroom garden flat with private entrance
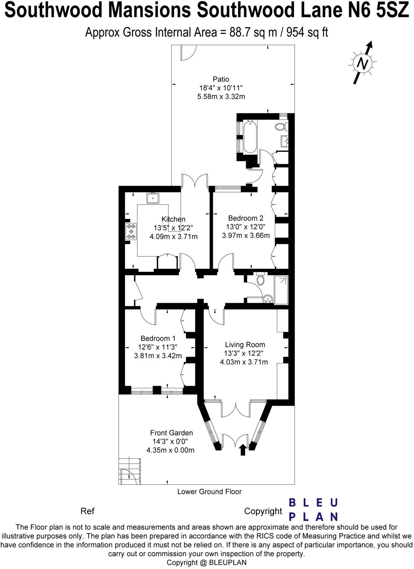
A generous two-bedroom garden flat set within an elegant red-brick mansion block, recently renovated to combine period detail with contemporary living. High ceilings, original parquet and a decorative fireplace deliver classic character while a large modern kitchen, bespoke cabinetry and two bathrooms meet everyday family needs.
The flat has a private entrance and direct access from tall French doors to a private patio that opens onto well-kept communal gardens — an unusual city advantage for morning coffee or safe outdoor play. The long lease (964 years) and chain-free sale simplify ownership, and Highgate Underground plus village shops are moments away.
Practical considerations include on-street CPZ parking only, an annual service charge of about £2,400, and above-average council tax. Fibre broadband is available but reported speeds are slow; mobile signal and mains gas heating are excellent. Buyers should note the building’s solid brick walls likely have no cavity insulation and that fixtures and services have not been formally tested.
2 bedroom flat for sale in Southwood Lane, Highgate, N6 — £900,000 • 2 bed • 1 bath • 1019 ft²
2 bedroom flat for sale in Hornsey Lane Gardens, Highgate, N6 — £730,000 • 2 bed • 2 bath • 803 ft²
3 bedroom apartment for sale in Wood Lane, London, N6 — £1,600,000 • 3 bed • 1 bath • 1577 ft²
2 bedroom apartment for sale in North Road, Highgate Village, London, N6 — £1,350,000 • 2 bed • 2 bath • 1184 ft²
2 bedroom flat for sale in Bloomfield Road, Highgate, N6 — £550,000 • 2 bed • 1 bath • 648 ft²
2 bedroom flat for sale in Archway Road, Highgate, N6 — £399,950 • 2 bed • 1 bath • 442 ft²














































