Bright two-bedroom apartment with private garden near Leyton Midland station.
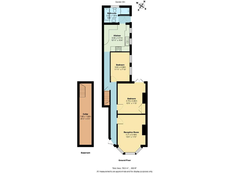
- Immaculately presented Victorian ground-floor flat, 860 sq ft
- Two double bedrooms; flexible layout for office or second reception
- Private rear garden approx 19'8"; secluded and low-maintenance
- Long narrow cellar provides useful storage but limited headroom
- Stripped wooden floors, period features and modern kitchen and bathroom
- Share of freehold on completion
- Solid brick walls assumed uninsulated; consider insulation works
- Area records above-average crime; nearby amenities and transport compensate
Set on the ground floor of a Victorian terrace, this immaculately presented two-bedroom flat offers 860 sq ft of well-arranged living space. Period details including a bay-windowed reception, stripped wooden floors and a feature fireplace sit alongside a modern kitchen and bathroom, so you can move in immediately and enjoy the nearby cafés, pubs and green spaces.
Both bedrooms are doubles and the flexible layout means one could serve as a home office or second reception. Practical extras include a long cellar for storage and a private rear garden (circa 19'8") — a rare outdoor space for this part of Leyton. Leyton Midland Road station is a short walk away, with good bus links to Stratford and further transport connections.
Buyers should note a few material points: the building’s solid brick walls are assumed uninsulated, and the property is in a terrace within an area that records above-average crime. The footprint is modest for two bedrooms, and the cellar is narrow. Tenure is share of freehold, which completes on sale.
This home will suit first-time buyers or couples looking for a characterful, low-maintenance base with outdoor space and strong local amenities. The combination of ready-to-live-in condition, transport links and local schools makes it a practical purchase in a popular, well-connected pocket of Leyton.
2 bedroom flat for sale in Francis Road, Leyton, E10 — £500,000 • 2 bed • 1 bath • 642 ft²
2 bedroom flat for sale in Chadwick Road, Leytonstone, E11 — £575,000 • 2 bed • 1 bath • 789 ft²
2 bedroom flat for sale in Francis Road, Leyton, E10 — £525,000 • 2 bed • 1 bath • 590 ft²
2 bedroom flat for sale in Primrose Road, Leyton, E10 — £375,000 • 2 bed • 1 bath • 556 ft²
2 bedroom flat for sale in Claude Road, Leyton, London, E10 — £425,000 • 2 bed • 1 bath • 589 ft²
1 bedroom maisonette for sale in Essex Road, Leyton, E10 — £425,000 • 1 bed • 1 bath • 765 ft²














































































































































