Chain-free Victorian mid-terrace with bay window
This bay-fronted Victorian mid-terrace sits a short walk from Ipswich station, town centre and waterfront — an attractive spot for first-time buyers seeking easy commuting and local amenities. The house is chain-free and presented in good order, with recent upgrades including a new combi boiler and replacement uPVC windows and doors, which improve warmth and reduce immediate maintenance.
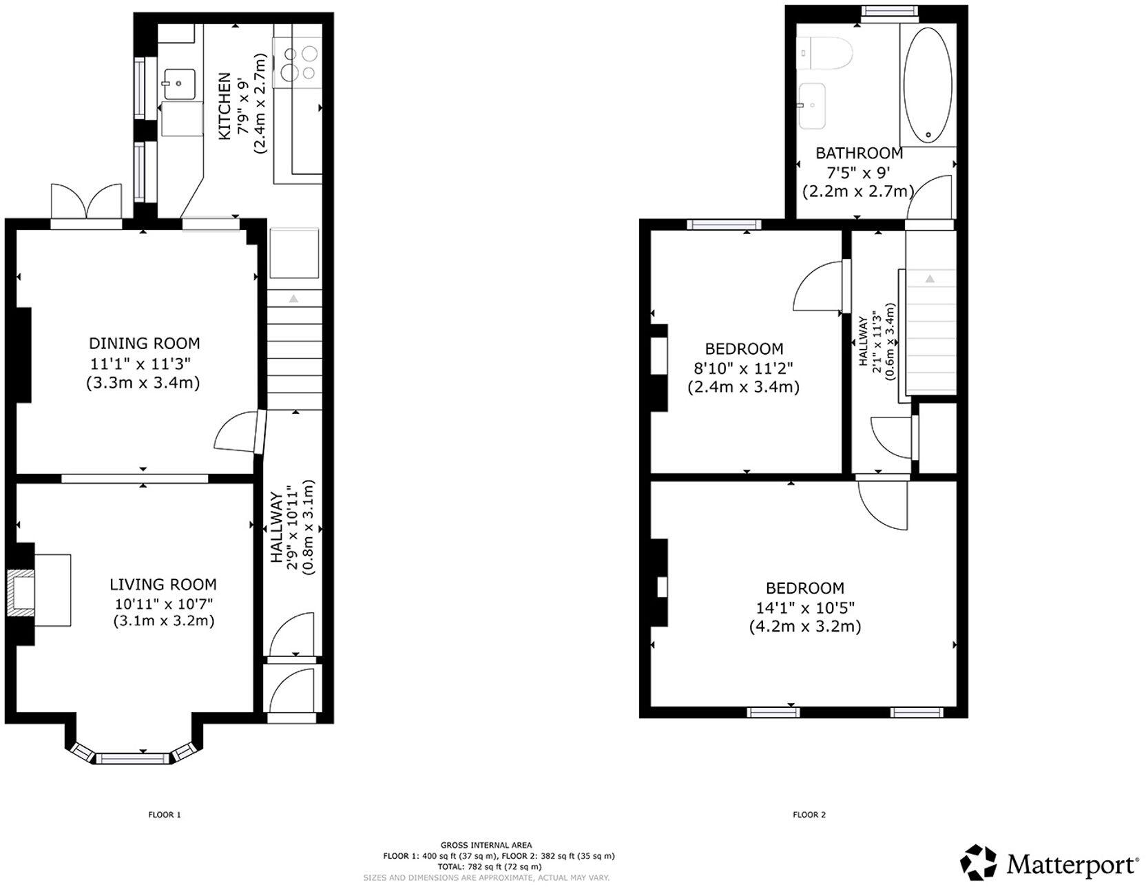
Inside, an open-plan living and dining area with a period fireplace and wood-style flooring creates a sociable ground floor; the first floor provides two double bedrooms and a large bathroom. The enclosed rear garden has a decked area and lawn, offering private outdoor space on a modest plot. The property totals about 743 sqft and benefits from an EPC C rating and very low council tax.
Buyers should note a few practical considerations. The building dates from before 1900 and walls are solid brick with no known wall insulation, so further insulation works could be required to reach higher efficiency standards. The plot is small and the property is typical of terraced homes with average-sized rooms and standard ceiling heights. Local area data flags higher deprivation and average crime levels in the neighbourhood.
Schools locally are mixed: nearby primary and secondary options include some rated Good, though one nearby primary is rated Requires Improvement. The location’s strong transport links and recent mechanical upgrades make the house suitable for first-time buyers wanting a move-in-ready period home, or for buyers willing to invest in insulation and cosmetic updating over time.
2 bedroom terraced house for sale in Bramford Road, IP1 — £159,950 • 2 bed • 1 bath • 896 ft²
2 bedroom terraced house for sale in Wherstead Road, Ipswich, IP2 — £180,000 • 2 bed • 1 bath • 872 ft²
2 bedroom end of terrace house for sale in Beaconsfield Road, Ipswich, IP1 — £185,000 • 2 bed • 1 bath • 700 ft²
3 bedroom end of terrace house for sale in Alston Road, Ipswich, Suffolk, IP3 — £260,000 • 3 bed • 2 bath • 1061 ft²
2 bedroom terraced house for sale in Bramford Road, Ipswich, IP1 — £159,995 • 2 bed • 1 bath • 896 ft²
2 bedroom end of terrace house for sale in Rectory Road, Ipswich, IP2 — £210,000 • 2 bed • 1 bath • 980 ft²


























































