Affordable period home with conversion potential near transport links.
Walkable to town centre and train station
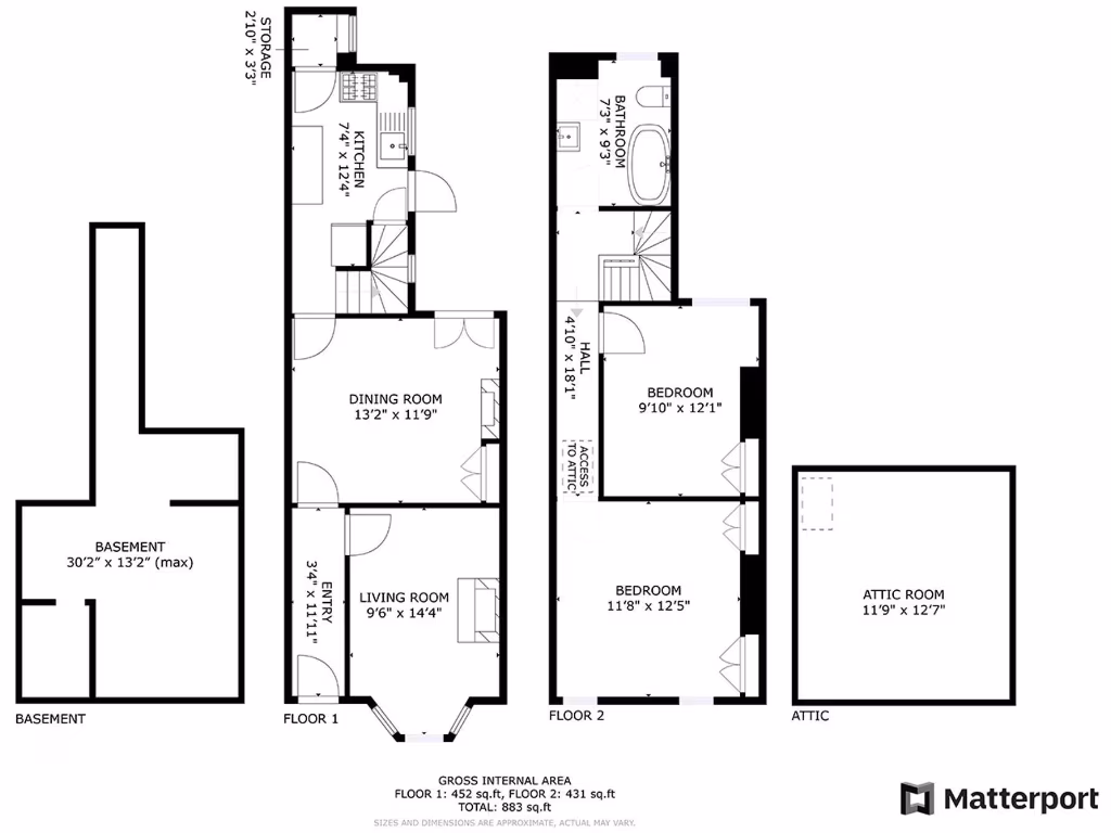
An attractive Victorian mid-terrace with bay window detail, positioned a short walk from Ipswich town centre and the train station. The living room and separate second reception give flexible ground-floor living while the kitchen and four-piece bathroom serve two double bedrooms upstairs. A basement and loft room add storage and conversion potential.
This freehold home suits a first-time buyer or investor looking for central location and period character. The property is average-sized (approximately 872 sqft) with a small courtyard-style rear garden — low-maintenance outdoor space close to local shops and transport.
Buyers should note practical defects: solid brick walls likely lack cavity insulation, the EPC is D, and some updating may be required throughout. The area has high crime and very deprived local indicators, which may affect long-term resale or rental yield. The basement and loft are usable now for storage but may need planning and works to convert legally and safely.
Overall this property offers affordable entry into Ipswich with character features and good transport links, but it requires a realistic budget for energy improvements and modernisation to maximise comfort and value.
2 bedroom terraced house for sale in Woodbridge Road, Ipswich, IP4 — £250,000 • 2 bed • 2 bath • 1650 ft²
2 bedroom terraced house for sale in Philip Road, Ipswich, IP2 — £240,000 • 2 bed • 1 bath • 1069 ft²
2 bedroom terraced house for sale in Rectory Road, Ipswich, IP2 — £200,000 • 2 bed • 1 bath • 743 ft²
2 bedroom terraced house for sale in Burrell Road, Ipswich, IP2 — £160,000 • 2 bed • 1 bath • 894 ft²
4 bedroom town house for sale in Norwich Road, Ipswich, IP1 — £330,000 • 4 bed • 1 bath • 1675 ft²
2 bedroom terraced house for sale in Brooks Hall Road, Ipswich, IP1 — £205,000 • 2 bed • 1 bath • 786 ft²






























































