**Standout Features:**
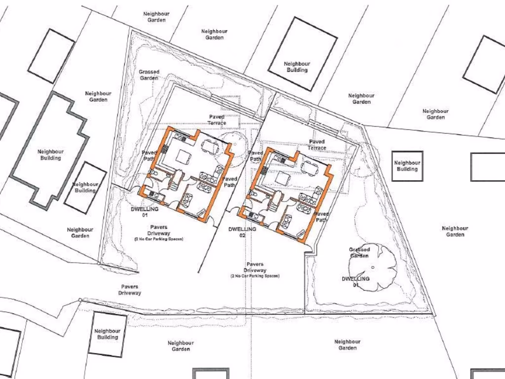
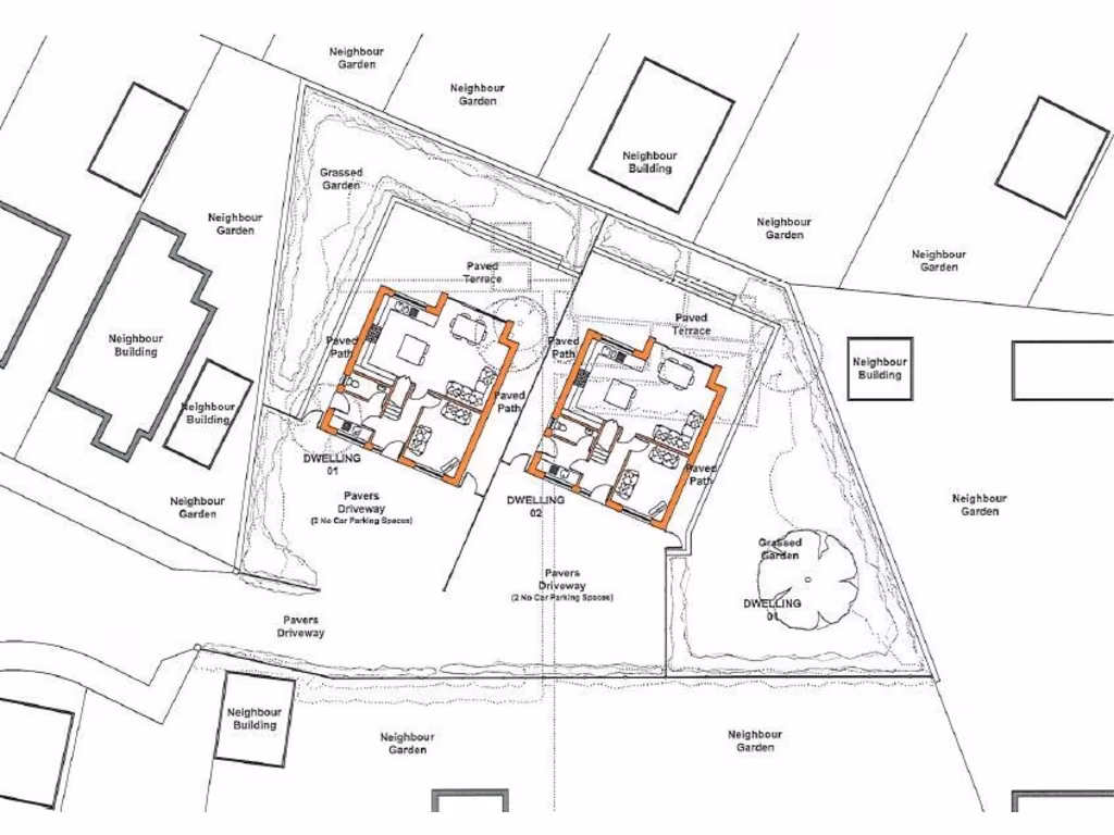
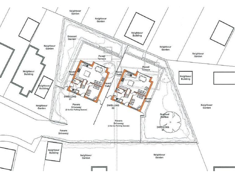
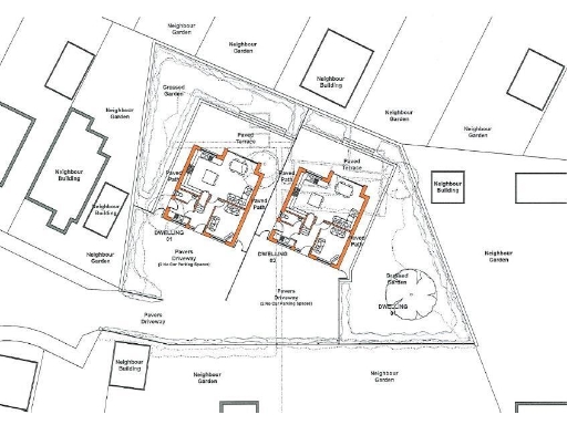
- Two building plots with planning permission for two 4-bedroom, 3-bathroom detached homes.
- Freehold tenure, offering permanent ownership.
- Private access from Studfield Drive, enhancing accessibility.
- Located in a desirable area of Loxley, Sheffield, near amenities and stunning countryside.
**Summary:**
Seize the rare opportunity to develop two bespoke family homes on this prime residential land in Loxley, Sheffield. With planning permission already secured (Planning Reference 23/03090/OUT), each proposed dwelling is designed to feature four spacious bedrooms and three modern bathrooms, perfect for family living. The plots sit within a tranquil suburban setting, bordered by established homes, offering a sense of community and low crime rates.
Surrounded by lush greenery and mature trees, the site presents ample space for outdoor activities, providing a serene environment for future residents. Enjoy the proximity to local amenities such as schools, shops, and beautiful countryside trails, making it an ideal location for families. Capitalize on this flexible building opportunity and transform this land into your vision of modern living. Act quickly—properties like this don’t last long!
Land for sale in Wood Royd Road, Deepcar, Sheffield, S36 — £260,000 • 1 bed • 1 bath
Land for sale in 139 Ringinglow Road, Sheffield, S11 — £225,000 • 1 bed • 1 bath • 1925 ft²
Land for sale in Land At Hollin Busk Road, Stocksbridge, Sheffield, S36 — £350,000 • 1 bed • 1 bath • 21344 ft²
Land for sale in 288 Sandygate Road, Sheffield, S10 5SE, S10 — £2,200,000 • 1 bed • 1 bath • 13939 ft²
Land for sale in Brooklands Avenue, Fulwood, S10 — £2,400,000 • 1 bed • 1 bath • 16436 ft²
Land for sale in Lock Street, Sheffield, S6 — £1,200,000 • 1 bed • 61 bath


































