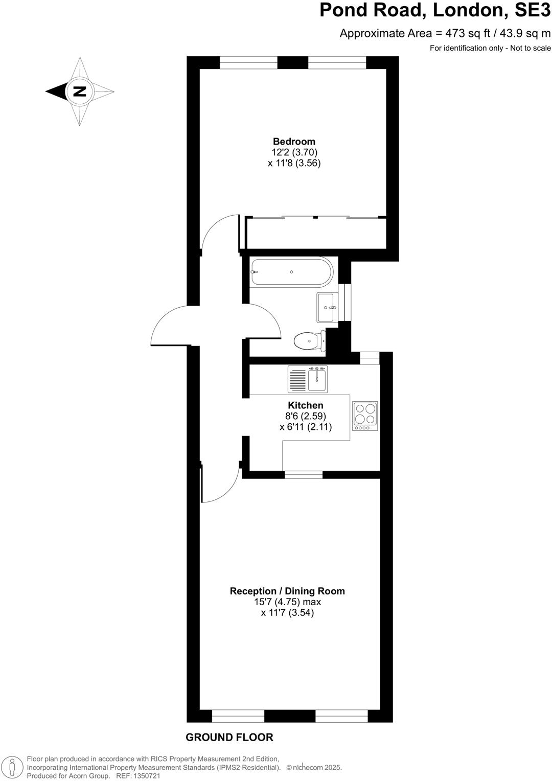
Georgian one-bedroom flat with parking, long lease and communal garden close to Blackheath Village.
Share of freehold with 986 years remaining lease
Chain-free sale, ready for immediate exchange
Attractive period features: high ceilings, sash windows
Allocated off-street parking and communal garden
Compact footprint c.473 sq ft, one double bedroom
Service charge approx. £2,500 per year
Solid brick walls likely without modern insulation
Local broadband speeds reported slow
This attractive ground-floor one-bedroom conversion sits within a handsome Georgian townhouse on the private Cator Estate. High ceilings, original sash windows and large rooms give strong period character, while a modern kitchen and white bathroom make the flat move-in ready for a first-time buyer or investor.
Practical benefits include share of freehold with an exceptionally long lease (986 years), allocated off-street parking, communal gardens and mains gas central heating. Its quiet position and proximity to Blackheath Village (around a ten-minute walk) suit a home worker or someone wanting easy access to cafés, shops and transport links.
Buyers should note the apartment is compact at around 473 sq ft and the service charge is approximately £2,500 per year. The building’s solid brick walls likely lack modern cavity insulation and broadband speeds in the area are reported slow — both factors to consider if prioritising energy efficiency or high-speed working-from-home needs.
Overall this is a characterful, chain-free purchase with long-lease security and parking — a sensible step for a first-time buyer, downsizer seeking a low-maintenance period flat, or an investor targeting steady rental demand in a very affluent area.
1 bedroom flat for sale in Morden Road, London, SE3 — £450,000 • 1 bed • 1 bath • 603 ft²
2 bedroom apartment for sale in Pond Road, Blackheath, London, SE3 — £800,000 • 2 bed • 2 bath • 1100 ft²
2 bedroom apartment for sale in Lennox House, 96 Manor Way, Blackheath, London, SE3 — £475,000 • 2 bed • 1 bath • 773 ft²
3 bedroom flat for sale in Morden Road, London, SE3 — £800,000 • 3 bed • 2 bath • 1253 ft²
1 bedroom apartment for sale in St Johns Park, Blackheath, SE3 — £375,000 • 1 bed • 1 bath • 440 ft²
1 bedroom apartment for sale in Shooters Hill Road, Blackheath, London, SE3 — £399,995 • 1 bed • 1 bath • 770 ft²










































































