Central Treorchy home with gardens, garage and four flexible bedrooms.
Victorian stone end-of-terrace with bay window and period features
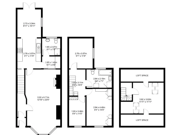
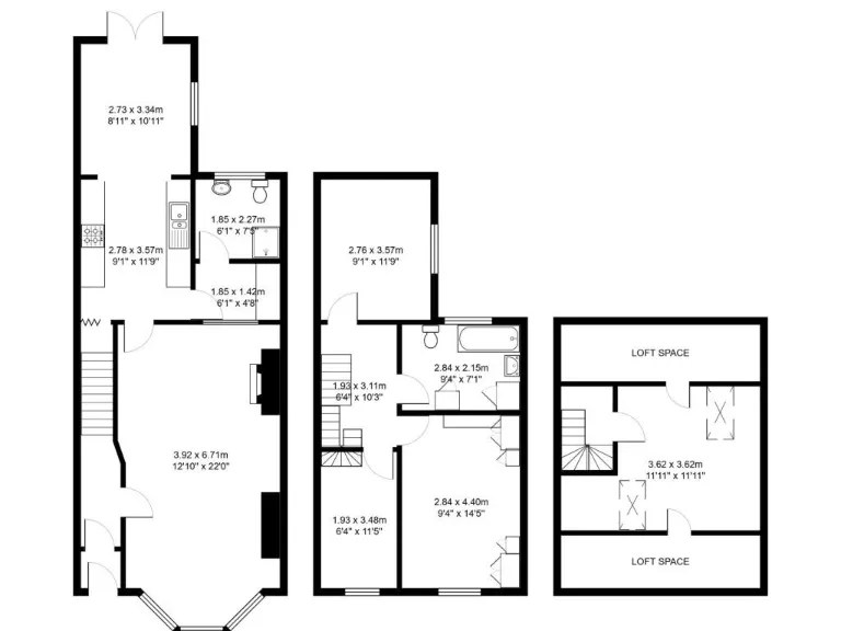
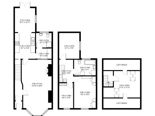
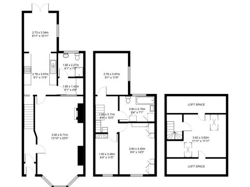
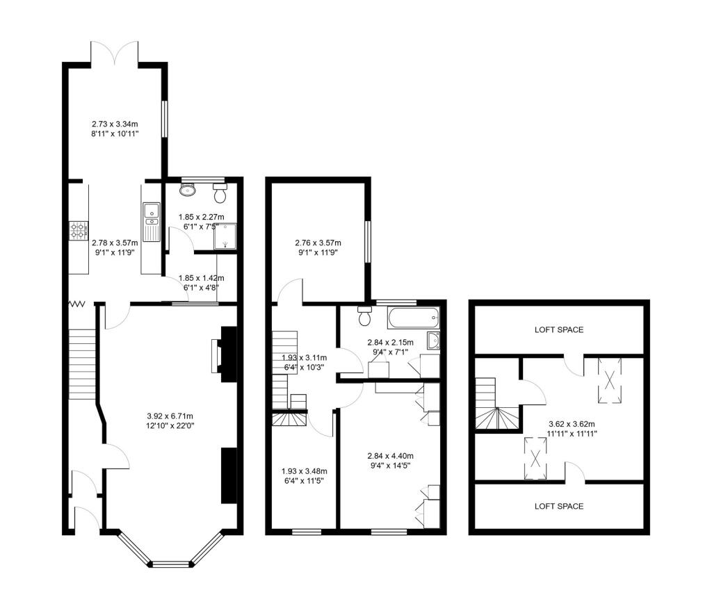
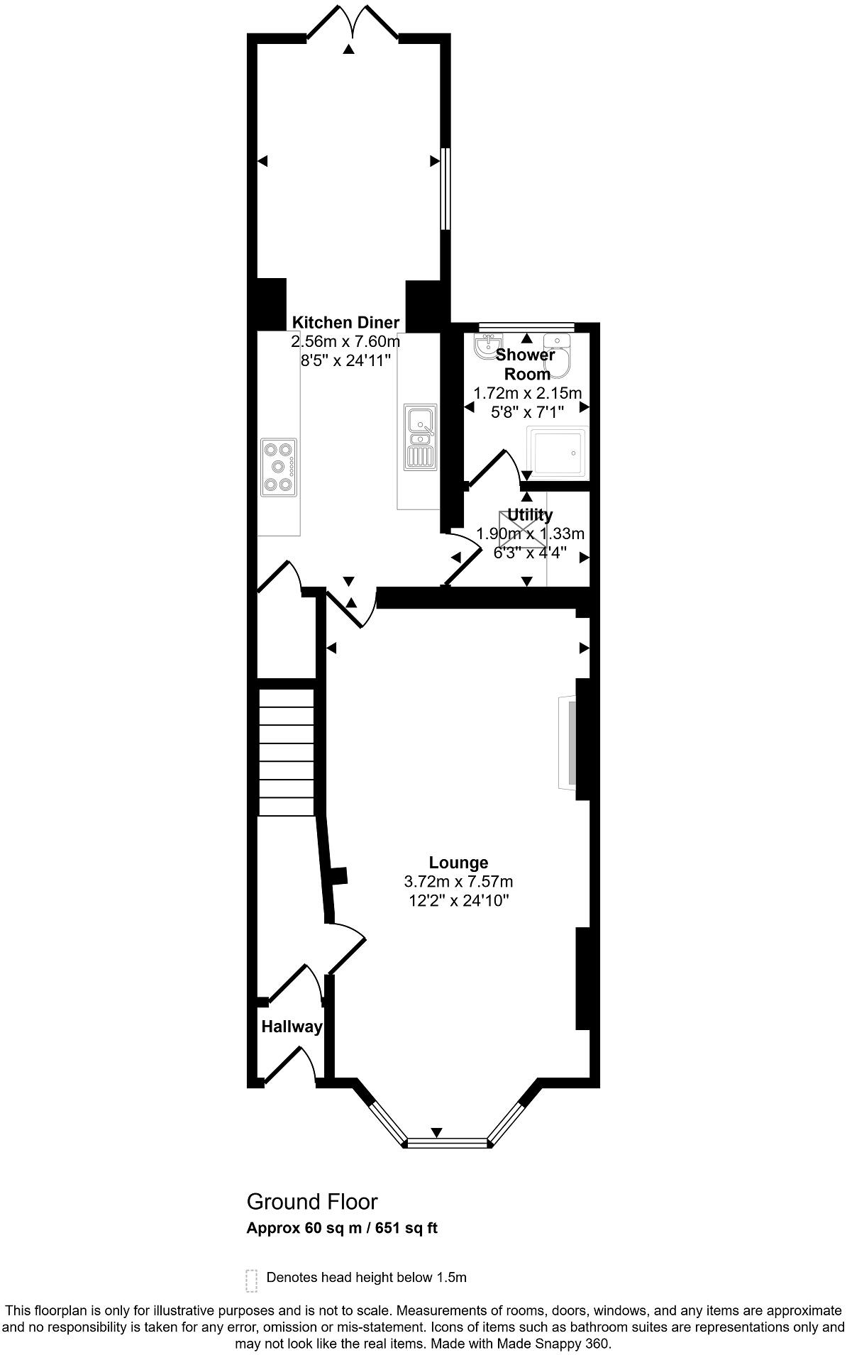
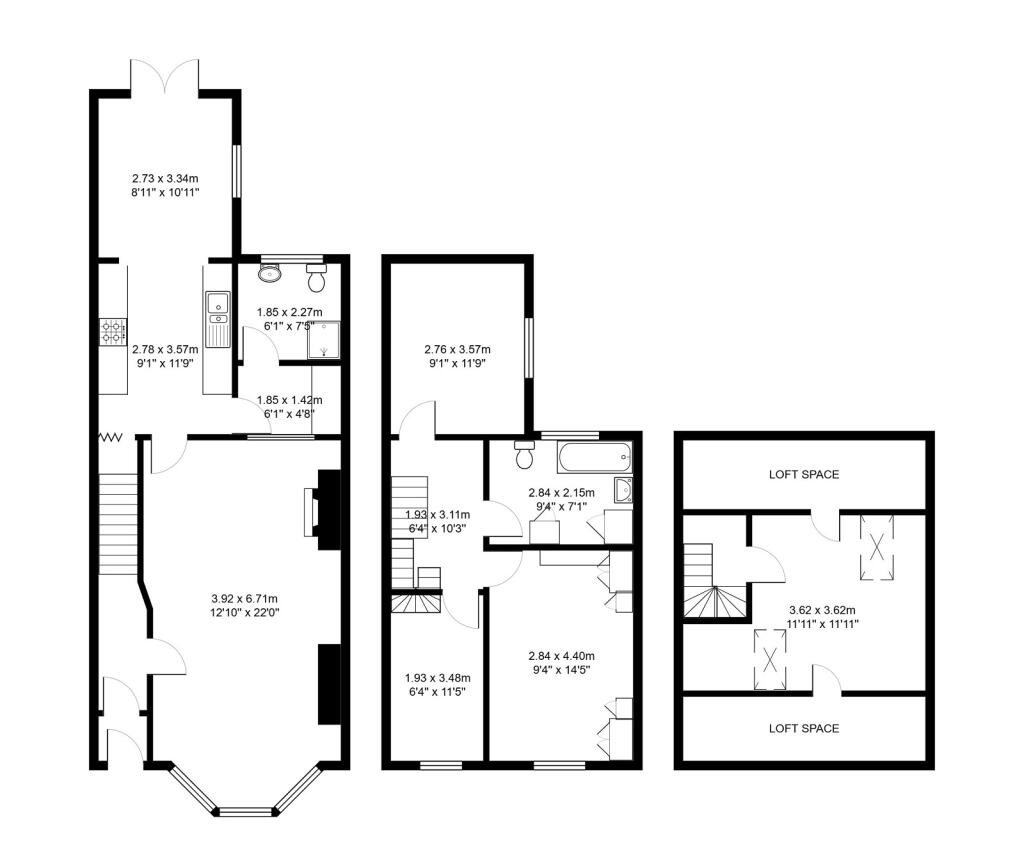
Large kitchen-diner plus utility room and showroom/ancillary space
Three generous first-floor bedrooms; attic converted to fourth bedroom
Front and rear mature gardens with rear garage and summer house potential
Double glazing and mains gas central heating installed
Overall property footprint is small (approx 651 sq ft) and compact plot
Walls likely uninsulated — energy-efficiency improvements may be needed
Located in a very deprived area; low council tax but resale dynamics may vary
Set on a Victorian street in the heart of Treorchy, this end-of-terrace home combines period character with practical living. High ceilings and a bay window create bright, airy reception rooms while a large kitchen opens into a dining area and utility room — layouts that suit family life and entertaining. A rear garage and mature front and rear gardens add outdoor space rarely found on small plots.
The first floor offers three generous bedrooms and a stylish family bathroom; an attic conversion provides a fourth bedroom, increasing flexibility for a growing household or home office. The property benefits from double glazing and gas central heating, and it sits tucked close to the High Street’s shops, cafés and services for everyday convenience.
Buyers should note the house is relatively small overall (about 651 sq ft) and sits on a compact plot. The stone-built walls are likely uninsulated, which may affect energy bills and could require improvement work. The surrounding area is classified as very deprived, which may influence long-term resale dynamics, though council tax is low and there is no flood risk.
This freehold Victorian property will suit buyers seeking character, central village convenience and scope to modernise. It’s especially appropriate for families wanting flexible living space and for purchasers keen to invest in targeted improvements to insulation and internal layout.
3 bedroom end of terrace house for sale in Dumfries Street, Treorchy, Rhondda Cynon Taff. CF42 6TS, CF42 — £190,000 • 3 bed • 1 bath • 1112 ft²
3 bedroom terraced house for sale in Bute Street, Treorchy, Rhondda Cynon Taff. CF42 6AU, CF42 — £225,000 • 3 bed • 1 bath • 1084 ft²
3 bedroom terraced house for sale in Chepstow Road, Cwmparc, Treorchy, Rhondda Cynon Taff, CF42 — £164,950 • 3 bed • 1 bath • 1195 ft²
3 bedroom end of terrace house for sale in Dyfodwg Street, Treorchy CF42 — £195,000 • 3 bed • 1 bath • 1544 ft²
3 bedroom terraced house for sale in Dumfries Street, Treorchy, Rhondda Cynon Taff. CF42 6TR, CF42 — £224,995 • 3 bed • 1 bath • 998 ft²
3 bedroom terraced house for sale in Windsor Street, Treorchy, Rhondda Cynon Taff. CF42 6DG, CF42 — £175,000 • 3 bed • 1 bath • 516 ft²


































































































































































