Compact lower-ground seaside flat with private entrance and garden access—ideal first home or holiday base..
Private lower-ground one-bedroom flat with its own entrance
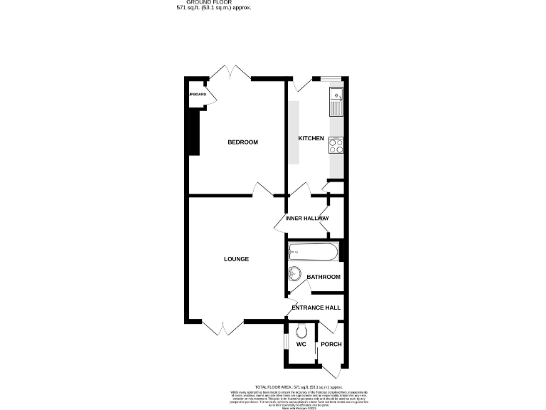
Approximately 571 sq ft; compact, easy-to-manage layout
Moments from beach, town centre and nearby train station
Access to communal gardens, plus private courtyard and patio
Period Victorian building; solid brick construction (no insulation assumed)
EPC rating C; mains gas boiler and radiators
Leasehold tenure — check lease terms and any charges
Area recorded as deprived with a high local crime rate
Set just moments from the seafront, this lower-ground one-bedroom flat offers compact coastal living with a private entrance and access to communal gardens. The layout includes a lounge/diner opening to a front courtyard, separate kitchen, bathroom and a well-proportioned bedroom — an easy-to-manage home or weekend retreat of about 571 sq ft.
The building is a period Victorian terrace constructed before 1900 and benefits from double glazing (install date unknown) and mains gas central heating with a boiler and radiators. The property holds an EPC rating of C and a very low council tax band, supporting affordable running costs for first-time buyers or holiday-home owners.
Buyers should note this is a leasehold lower-ground apartment in an area recorded as deprived with a high local crime rate; that context may influence insurance, safety measures and future resale. The solid-brick walls are assumed to have no insulation, so buyers may want to budget for thermal upgrades or survey advice to improve comfort and energy efficiency.
Close to Westgate town centre, local eateries (including a Michelin-listed restaurant nearby), the Carlton Cinema and the train station, the flat is well placed for commuters and leisure-seekers. Broadband speeds are average but mobile signal is excellent. The property is best for someone seeking an affordable seaside base with renovation and efficiency-improvement potential.
2 bedroom flat for sale in Cuthbert Road, Westgate-On-Sea, Kent, CT8 — £240,000 • 2 bed • 1 bath • 560 ft²
1 bedroom flat for sale in Beach Road, Westgate-On-Sea, CT8 — £225,000 • 1 bed • 1 bath • 695 ft²
2 bedroom flat for sale in Beach Road, Westgate-on-Sea, Kent, CT8 — £180,000 • 2 bed • 1 bath • 797 ft²
1 bedroom flat for sale in Northumberland Avenue, Margate, CT9 — £120,000 • 1 bed • 1 bath • 699 ft²
1 bedroom apartment for sale in Beach Road, Westgate-On-Sea, CT8 — £230,000 • 1 bed • 2 bath • 678 ft²
1 bedroom flat for sale in Eastern Esplanade, Margate CT9 — £200,000 • 1 bed • 1 bath • 729 ft²










































