Immaculate five‑bed barn with landscaped gardens and double garage for family living.
5 double bedrooms, en‑suite, family bathroom and separate shower room
Approximately 2,271 sqft of living space on a 0.15 acre plot
Landscaped front and rear gardens with paved driveway and double garage
Chain free sale; freehold tenure
Double glazing and external wall insulation already installed
Heating by oil boiler; higher fuel costs likely
Slow broadband speeds in the village
Council tax level described as expensive
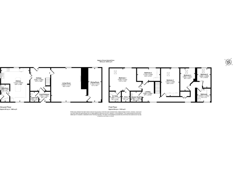
Set in the Shropshire Hills, The Granary is a spacious five‑bedroom barn conversion offering 2,271 sqft of well-presented family accommodation across two floors. The ground floor provides two reception rooms, a luxury dining kitchen with utility, and a cloakroom, while the first floor has five bedrooms, an en‑suite, a family bathroom and a separate shower room. The property sits on a 0.15 acre plot with landscaped front and rear gardens and a double garage.
Practical strengths include double glazing installed after 2002, external insulation to the stone walls, oil‑fired boiler with radiators, and a paved driveway. It is offered freehold and chain free, with no local flood risk. The setting is quiet and rural, with distant countryside views and nearby meadow and woodland for family outdoor time.
Material drawbacks are straightforward: broadband speeds are slow, heating runs on oil (not a community supply), and council tax is described as expensive. The home sits in a remoter village location, so services and commuter links are limited compared with urban areas. Buyers should expect higher running costs than a mains‑gas property and allow time for any planned modernisation.
Overall this is a characterful, move‑in ready family home in a tranquil rural setting. It will suit buyers seeking space, landscaped gardens and countryside living, while those needing fast broadband or lower ongoing energy bills should factor that into their decision.
3 bedroom barn conversion for sale in The Granary, Neachley Lane, Neachley, Shifnal, TF11 8PH, TF11 — £525,000 • 3 bed • 2 bath • 1422 ft²
5 bedroom barn conversion for sale in Red House Farm, Longdon-Upon-Tern, Telford, Shropshire, TF6 6LE, TF6 — £675,000 • 5 bed • 3 bath • 2492 ft²
4 bedroom barn conversion for sale in Barn 1, Knowle Bank Farm Knowles Bank, Shifnal, TF11 9PG, TF11 — £624,950 • 4 bed • 3 bath • 2319 ft²
4 bedroom terraced house for sale in Homestead Barns, Atcham, Shrewsbury, SY5 6QP, SY5 — £440,000 • 4 bed • 2 bath
4 bedroom barn conversion for sale in Cardington, Church Stretton, Shropshire, SY6 — £1,200,000 • 4 bed • 3 bath • 3683 ft²
4 bedroom barn conversion for sale in High Clear Barn, Beaconhill Lane, Monkhopton, Bridgnorth, WV16 — £765,000 • 4 bed • 2 bath • 1790 ft²






















































































































































































































































































































































































































