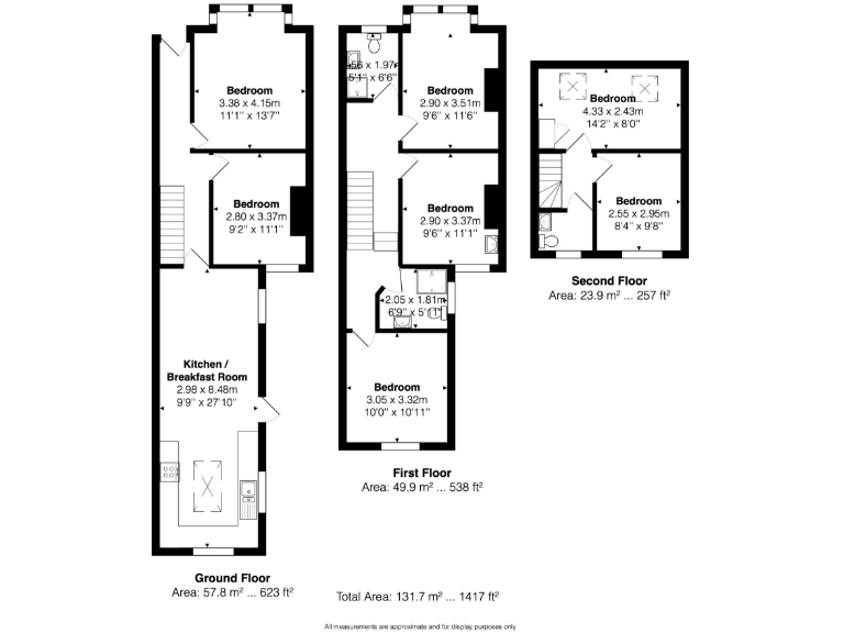
**Key Features:**
- Six-bedroom terraced property in a prime Preston Park/Fiveways area
- Double glazing throughout for energy efficiency
- Two bathrooms and one additional WC
- Fully compliant as an HMO, with current tenants in place until August 2025
- Rental income of £3,379.98 PCM, with potential increase to £3,639.96 PCM for new academic year (2025-2026)
- Secure small rear garden and excellent transport links
This Victorian terraced house, nestled in a desirable neighborhood, presents a compelling investment opportunity. Boasting six generously sized bedrooms, the property accommodates ample living space suitable for families or students alike. Its modern kitchen and open-plan dining area provide a perfect setting for social gatherings, while the two bathrooms and WC ensure convenience amidst busy lifestyles.
Currently functioning as an HMO, the property will continue generating income for potential buyers, with existing tenants already secured through August 2026. The double glazing enhances comfort, and despite the property being on the smaller end, it offers a charming and well-maintained environment that’s rich in character. With HMO licensing information available upon request and an array of local amenities at your doorstep—including restaurants, cafes, and parks—this property serves a dual purpose: a lucrative investment or a comfortable family home.
Please note the property is sold as an ongoing investment, but the potential exists to revert back to residential use. Given its outstanding position and revenue-generating potential, this opportunity is not to be missed!
6 bedroom terraced house for sale in Gordon Road, BN1 — £650,000 • 6 bed • 3 bath • 1517 ft²
6 bedroom terraced house for sale in Upper Hollingdean Road, BN1 — £575,000 • 6 bed • 3 bath • 1313 ft²
6 bedroom terraced house for sale in Brading Road, BN2 — £585,000 • 6 bed • 3 bath • 1400 ft²
7 bedroom terraced house for sale in Upper Hollingdean Road, BN1 — £625,000 • 7 bed • 3 bath • 1659 ft²
6 bedroom terraced house for sale in Upper Lewes Road, Brighton, BN2 — £550,000 • 6 bed • 2 bath • 1417 ft²
6 bedroom terraced house for sale in Ewhurst Road, Brighton, BN2 — £500,000 • 6 bed • 2 bath • 1116 ft²






















































































































