**Standout Features:**
- **Location:** Prime Preston Park area, with excellent transport links to Brighton and Hove, universities, and amenities.
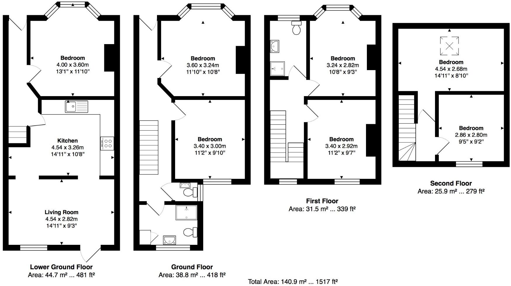
- **Size and Layout:** Spacious six-bedroom, three-bathroom Victorian terraced property, built in the early 20th century, with a total area of 1,517 sq ft.
- **Income Potential:** Currently tenanted with a rental income of £3,562.02 PCM until August 2025, re-let for £3,639.96 PCM until August 2026, offering immediate cash flow.
- **Modern Amenities:** Double glazing throughout, a modern kitchen equipped with high-quality appliances, and a functional garden space.
- **Compliance:** Fully compliant with HMO regulations, making it ideal for continued investment in student housing.
**Concerns:**
- **Maintenance:** The property may require some updates due to age and prior use, and insulation details could be addressed to maximize energy efficiency.
This impressive period terraced house presents a fantastic investment opportunity in the desirable Preston Park area of Brighton. With six spacious bedrooms and three bathrooms, it’s perfectly apt for student rentals or multi-person living, positioned conveniently near public transport and local amenities. Its sustained cash flow from established tenancies, combined with potential for future growth, makes it a wise choice for investors looking to tap into the vibrant rental market. The blend of classic Victorian features with modern necessities ensures comfort while offering room for customization or renovation. Don't miss out on this valuable property; schedule a viewing today to explore its abundant potential!
6 bedroom terraced house for sale in Hythe Road, BN1 — £650,000 • 6 bed • 3 bath • 1417 ft²
6 bedroom terraced house for sale in Brading Road, BN2 — £585,000 • 6 bed • 3 bath • 1400 ft²
6 bedroom terraced house for sale in Upper Hollingdean Road, BN1 — £575,000 • 6 bed • 3 bath • 1313 ft²
7 bedroom terraced house for sale in Upper Hollingdean Road, BN1 — £625,000 • 7 bed • 3 bath • 1659 ft²
6 bedroom terraced house for sale in Upper Lewes Road, Brighton, BN2 — £550,000 • 6 bed • 2 bath • 1417 ft²
5 bedroom terraced house for sale in Hollingdean Road, Brighton, BN2 — £425,000 • 5 bed • 1 bath • 913 ft²






































































































