Large garden and easy commuter links for growing families.
Chain-free four-bedroom mid-terrace over three floors
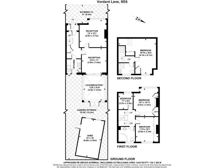
This spacious mid-terrace family house on Verdant Lane is arranged over three floors and offers four well-sized bedrooms, two reception rooms and two bathrooms. The generous rear garden and conservatory provide outdoor and family dining space, while a rear garage adds practical storage and parking potential. The property is offered chain-free, making it easier for a family to move quickly.
Located on the Bromley/Catford border, the home sits in a popular residential area with strong school catchments and frequent commuter links. Grove Park, Lee and Hither Green stations are all within a short distance, making Central London commutes straightforward. Local shops, cafes and green spaces are also nearby, suiting active family life.
The house dates from the mid-20th century and retains period character in places, including a bay-front reception and decorative fireplace. Practical issues to note: the EPC is rated D and cavity walls are assumed to have no insulation, so energy-efficiency improvements would be sensible. Overall presentation suggests a well-loved family home that would benefit from updating to maximise comfort and long-term running costs.
This property will suit families wanting living space, garden and easy access to schools and stations, and buyers prepared to invest modestly in energy and cosmetic improvements to increase value and comfort.
4 bedroom terraced house for sale in Verdant Lane, LONDON, SE6 — £600,000 • 4 bed • 2 bath • 1124 ft²
4 bedroom terraced house for sale in Further Green Road, Catford, London, SE6 — £495,000 • 4 bed • 2 bath • 1214 ft²
5 bedroom terraced house for sale in Broadfield Road, London, SE6 — £850,000 • 5 bed • 2 bath • 1590 ft²
4 bedroom house for sale in Lutwyche Road, Catford, SE6 — £800,000 • 4 bed • 2 bath • 1252 ft²
3 bedroom end of terrace house for sale in Conisborough Crescent, Catford, London, SE6 — £500,000 • 3 bed • 1 bath • 861 ft²
4 bedroom terraced house for sale in Bradgate Road, London, SE6 — £575,000 • 4 bed • 1 bath • 964 ft²


















































