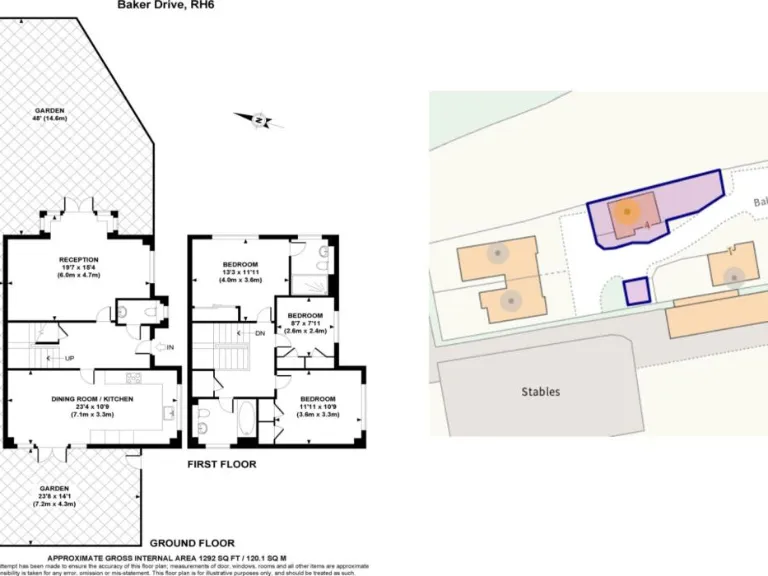
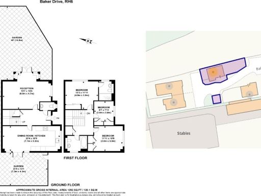
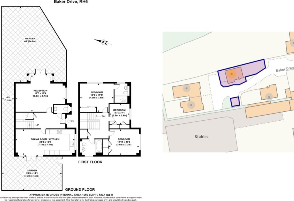
**Standout Features:**
- Modern detached family home built in 2016
- Located in a private, quiet cul-de-sac setting
- Three spacious double bedrooms with built-in wardrobes
- Generous kitchen/diner perfect for entertaining
- En-suite bathroom and downstairs WC for convenience
- Manageable wraparound garden with patio and courtyard
- Off-street parking for two vehicles
- Close proximity to primary schools and local amenities
**Summary:**
This beautifully presented three-bedroom detached home offers modern living in a serene Smallfield cul-de-sac. Built in 2016 by Asprey Homes, the property boasts a spacious living room that flows seamlessly into a manageable garden, perfect for family gatherings or quiet relaxation. The bright kitchen/diner is designed for entertaining, featuring ample storage and integrated appliances, while all three double bedrooms offer comfort and privacy—ideal for families or those seeking to downsize.
Although the home is located in a suburban area with a peaceful atmosphere, potential buyers should note the average council tax and crime rate in the region. Nevertheless, with easy access to primary schools and local amenities, this property combines comfort with convenience. With a price guide of £500,000 to £540,000, this offering is not to be missed—envision your future in this inviting family haven today!
3 bedroom detached house for sale in Grasslands, Smallfield, Surrey, RH6 — £450,000 • 3 bed • 1 bath • 1034 ft²
4 bedroom detached house for sale in Wheelers Lane, Smallfield, Surrey, RH6 — £775,000 • 4 bed • 2 bath • 1733 ft²
3 bedroom semi-detached house for sale in Gorse Drive, Smallfield, Surrey, RH6 — £450,000 • 3 bed • 2 bath • 1098 ft²
4 bedroom detached house for sale in Willow Place, Redehall Road, Smallfield, Surrey, RH6 — £575,000 • 4 bed • 2 bath • 1454 ft²
4 bedroom detached house for sale in Alberta Drive, Smallfield, Surrey, RH6 — £515,000 • 4 bed • 2 bath • 1109 ft²
4 bedroom detached house for sale in Hayes Walk, Smallfield, RH6 — £625,000 • 4 bed • 3 bath • 1406 ft²


















































