Generous plot and garage ideal for growing families seeking refurbishment potential.
Spacious reception and separate dining room ideal for family living|Large front and rear gardens with decent plot size|Two comfortable double bedrooms plus two bathrooms|Private garage offering parking or storage/workshop|Built before 1900 with solid-brick walls (no cavity insulation assumed)|Dated 1970s interior fittings — requires modernization|Freehold tenure with excellent broadband and mobile signal|Short walk to South Norwood Hill Station and local schools
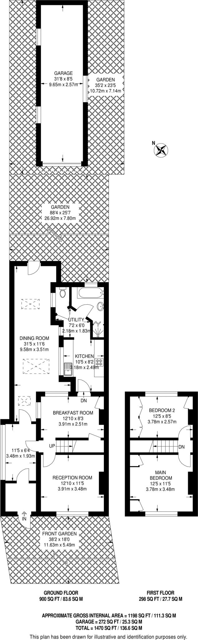
Set across two floors, this spacious two-bedroom semi-detached home on South Norwood Hill offers generous reception and dining space alongside sizable front and rear gardens. The comfortable double bedrooms and separate breakfast room make it well suited to families seeking room to grow close to local schools and transport links.
The property retains period solid-brick construction and double glazing, with gas central heating via boiler and radiators. Accommodation includes a large front reception, airy dining room and a smart kitchen with adjacent breakfast room, plus two bathrooms and a private garage — appeal for families and buyers wanting extra storage or workshop space.
Practical considerations: parts of the interior show dated 1970s fittings and will benefit from modernization; walls are solid brick with assumed no cavity insulation, so updating heating or insulation could be worthwhile. Broadband and mobile signals are strong, and South Norwood Hill Station is within easy reach for commuting.
Overall this freehold house offers substantial square footage and garden space on a decent plot, presenting clear potential for a sympathetic refurbishment to increase comfort and long-term value for an established family neighbourhood.
2 bedroom terraced house for sale in Clifton Road, South Norwood, London, SE25 — £390,000 • 2 bed • 1 bath • 766 ft²
3 bedroom terraced house for sale in Woodside Avenue, South Norwood, London, SE25 — £500,000 • 3 bed • 1 bath • 1127 ft²
2 bedroom maisonette for sale in Howard Road, South Norwood, London, SE25 — £350,000 • 2 bed • 1 bath • 1157 ft²
4 bedroom terraced house for sale in Warminster Road, London, SE25 — £500,000 • 4 bed • 2 bath • 1259 ft²
2 bedroom terraced house for sale in Howard Road, South Norwood, London, SE25 — £450,000 • 2 bed • 1 bath • 740 ft²
5 bedroom semi-detached house for sale in Wheathill Road, Anerley, London, SE20 — £1,100,000 • 5 bed • 2 bath • 1844 ft²






































































































































































































































































