**Standout Features:**
- Extended semi-detached home with beautiful presentation
- Spacious plot with stunning countryside views
- Two large reception rooms and a modern fitted kitchen
- Four well-sized bedrooms, family bathroom, and separate WC
- Landscaped mature gardens, ideal for family relaxation
- Driveway for up to three cars and a garage
- Located near excellent amenities and commuter links
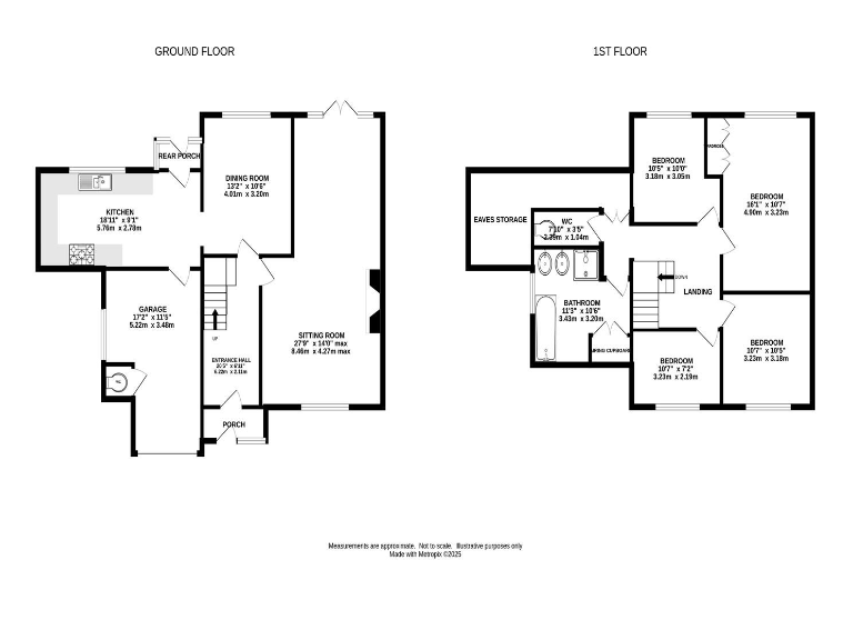
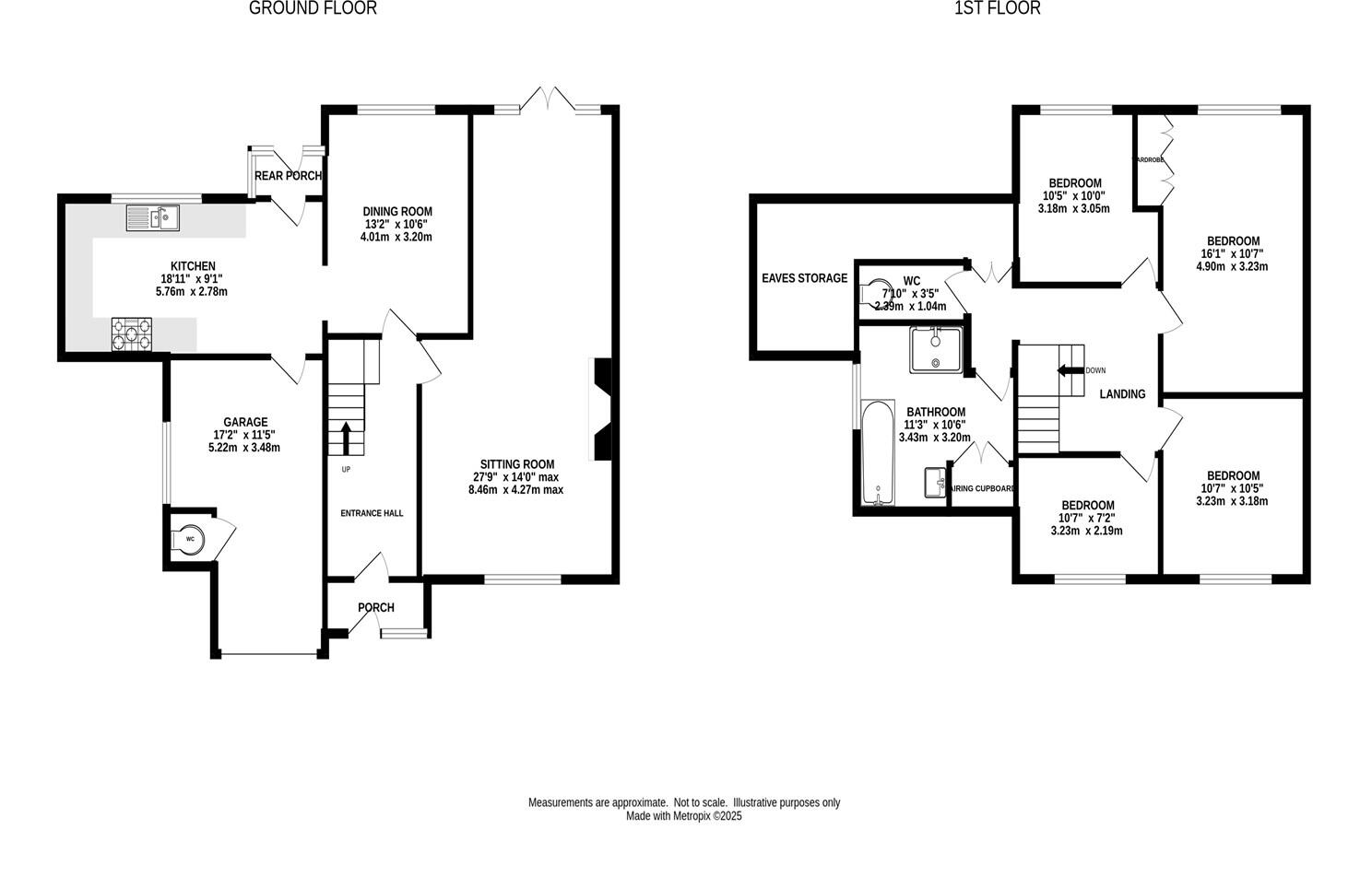
Nestled in a highly sought-after rural location, this beautifully presented extended semi-detached home offers a harmonious blend of spacious living and comforting tranquility. With a generous 2824 sq. ft., the property features two expansive reception rooms, perfect for entertaining, along with a modern fitted kitchen that seamlessly connects to the dining space. Upstairs, four good-sized bedrooms provide ample space for family living, while the bathroom and separate WC enhance convenience.
Step outside to discover the landscaped gardens, which not only exude charm but also provide breathtaking views of the surrounding countryside, making it an ideal retreat for families. The ample driveway and garage offer practicality, accommodating multiple vehicles with ease. Situated just a stone's throw from the town, you’ll enjoy a wealth of amenities and excellent transport links for effortless commuting to Manchester and beyond.
This exceptional property combines modern comforts with the allure of countryside living—viewing is highly recommended to fully appreciate its splendor. With a crime rate categorized as very low and excellent mobile signal, it ensures a secure, connected lifestyle for you and your loved ones. Don't miss this opportunity; homes like this are rarely available for long!
4 bedroom semi-detached house for sale in Shallcross Crescent, Whaley Bridge, High Peak, SK23 — £335,000 • 4 bed • 1 bath • 1218 ft²
4 bedroom detached house for sale in Hill Drive, Whaley Bridge, High Peak, SK23 — £650,000 • 4 bed • 2 bath • 1337 ft²
4 bedroom semi-detached house for sale in Jodrell Meadow, Whaley Bridge, High Peak, SK23 — £410,000 • 4 bed • 2 bath • 1292 ft²
4 bedroom semi-detached house for sale in Buxton Road, High Peak, SK23 — £350,000 • 4 bed • 2 bath • 1769 ft²
4 bedroom detached house for sale in Meadow Close, Whaley Bridge, High Peak, SK23 — £500,000 • 4 bed • 2 bath • 1935 ft²
2 bedroom semi-detached house for sale in Vaughan Road, Whaley Bridge, High Peak, SK23 — £278,000 • 2 bed • 1 bath • 776 ft²


























































































