Immaculate four-bed semi with large garden and new roof, close to schools and rail links.
Extended four-bedroom semi-detached home with new roof (2024)
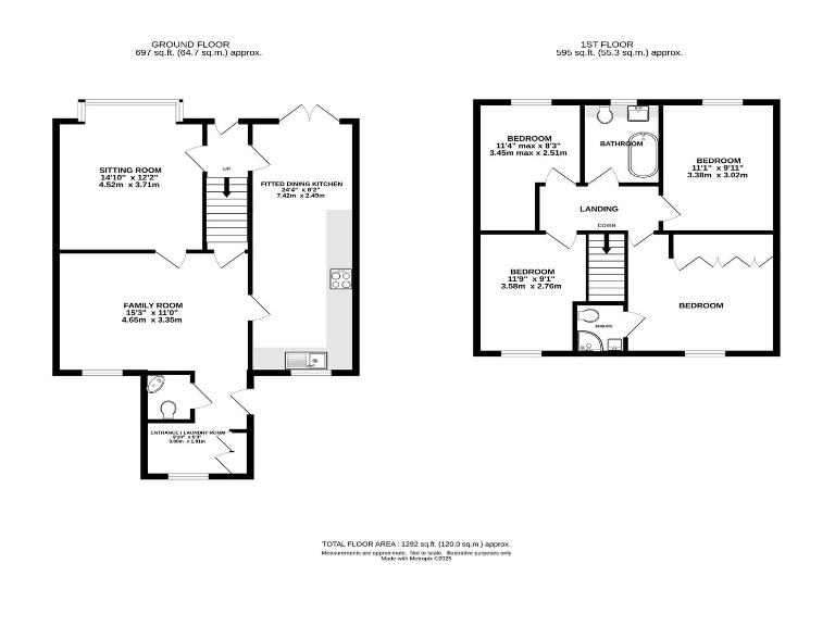
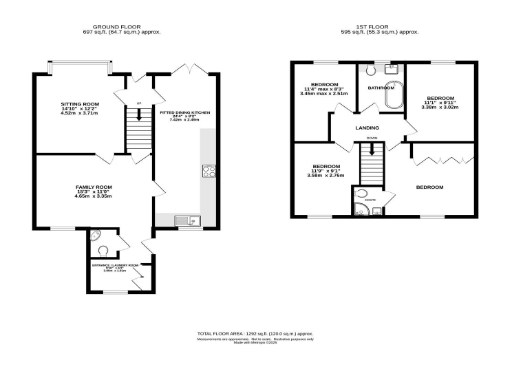
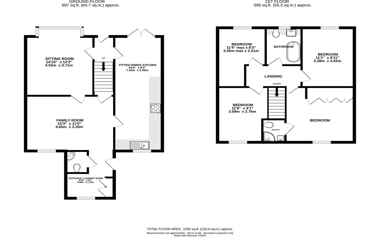
Two reception rooms, fitted dining kitchen with patio doors
Main bedroom with en-suite; family bathroom upstairs
Large landscaped rear garden with distant countryside views
Driveway parking for multiple cars and enclosed front garden
Recently renovated to high standards; largely move-in ready
Tenure: Leasehold — check lease length and service terms
Stone walls likely uninsulated (1930s–1940s) — potential insulation work
This extended four-bedroom semi-detached home on Jodrell Meadow has been renovated to a high standard and benefits from a new roof fitted in 2024. The house offers two reception rooms, a fitted dining kitchen with patio doors, a ground-floor laundry and cloakroom, and four bedrooms upstairs, including a main bedroom with an en-suite. A large landscaped rear garden with distant countryside views and a driveway for multiple cars add substantial outdoor space.
The property sits in a quiet, comfortable suburbia close to Whaley Bridge town amenities and commuter links by rail and bus, making it well suited to families who need school access and links to Manchester. The bright, contemporary interior and recent upgrades mean the house is largely move-in ready; the layout retains traditional proportions while providing modern fixtures.
Practical points to note: the tenure is leasehold, and the original stone walls (1930s–1940s build) are assumed to have no cavity insulation, so buyers wanting maximum thermal efficiency may need to consider further insulation works. Broadband speeds are average; mobile signal and local amenities are strong. Overall this is a spacious, family-focused home with larger-than-average gardens and clear commuter appeal.
4 bedroom semi-detached house for sale in Buxton Road, High Peak, SK23 — £350,000 • 4 bed • 2 bath • 1769 ft²
4 bedroom semi-detached house for sale in Shallcross Crescent, Whaley Bridge, High Peak, SK23 — £335,000 • 4 bed • 1 bath • 1218 ft²
4 bedroom detached house for sale in Reservoir Road, Whaley Bridge, High Peak, SK23 — £515,000 • 4 bed • 2 bath • 1477 ft²
4 bedroom semi-detached house for sale in Elnor Lane, Whaley Bridge, High Peak, SK23 — £435,000 • 4 bed • 1 bath • 2824 ft²
4 bedroom semi-detached house for sale in Alpha Mews, New Road, Whaley Bridge, High Peak, SK23 — £315,000 • 4 bed • 3 bath • 1234 ft²
4 bedroom detached house for sale in Hill Drive, Whaley Bridge, High Peak, SK23 — £650,000 • 4 bed • 2 bath • 1337 ft²






































































































