Modern family living with private roof retreat and flexible indoor-outdoor space.
Integral garage plus parking for two cars
Open-plan kitchen/diner with integrated Bosch and Indesit appliances
Separate utility room and ground-floor WC for practicality
Top-floor bedroom one with en suite and dressing area
Separate study—good for home working
Small overall house and plot size may limit extensions
Service charge £127 and above-average council tax noted
Tenure details appear inconsistent; verify before purchase
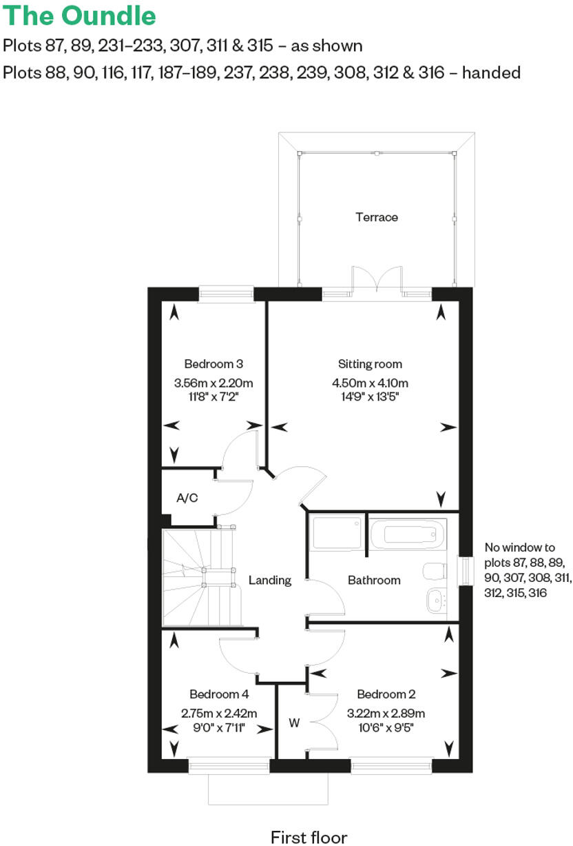
This four-bedroom detached home on Four Chimneys Crescent delivers modern, flexible living across three floors—well suited to families seeking move-in-ready space. The open-plan kitchen/dining area with integrated Indesit and Bosch appliances flows to the garden via French doors, while a separate utility room adds everyday practicality. A sitting room also opens onto a terrace, giving two easy indoor–outdoor spaces for summer entertaining.
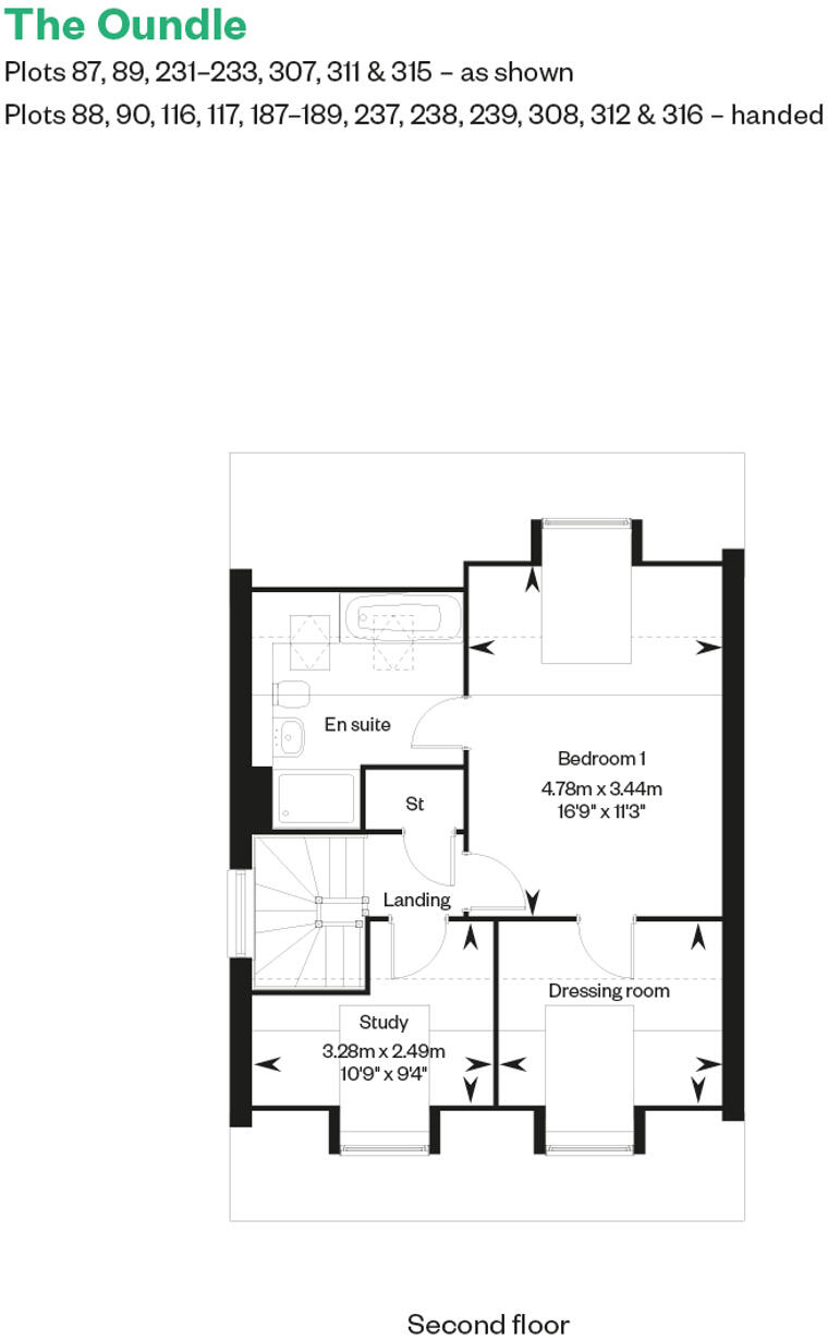
Bedroom one occupies the top floor and includes a dressing area and en suite, creating a private family retreat. Bedrooms two to four are served by a stylish four-piece family bathroom; bedroom two benefits from built-in wardrobes and there is a separate study for home working. An integral garage plus two-car parking is a useful addition on a development with generally small plots.
The property is new-build with modern finishes—Silestone worktops, recent flooring and turf to the rear garden are noted—so maintenance should be minimal initially. Broadband and mobile signal are strong and the area reports low crime, making this a comfortable choice for families. Local schools include Good and Outstanding-rated options within easy reach.
Notable constraints are the overall house and plot size, described as small, which may limit large-scale extensions or extensive garden use. Council tax is above average and the estate carries a service charge of £127 (management fee noted separately), so running costs are higher than a standalone rural home. Tenure information is inconsistent across the paperwork; buyers should confirm ownership and any management arrangements before exchange.
4 bedroom semi-detached house for sale in 354 Four Chimneys Crescent,
Hampton Heights,
Peterborough,
PE7 8SR, PE7 — £464,950 • 4 bed • 1 bath • 582 ft²
4 bedroom detached house for sale in 354 Four Chimneys Crescent,
Hampton Heights,
Peterborough,
PE7 8SR, PE7 — £414,950 • 4 bed • 1 bath • 1157 ft²
4 bedroom detached house for sale in 354 Four Chimneys Crescent,
Hampton Heights,
Peterborough,
PE7 8SR, PE7 — £439,950 • 4 bed • 1 bath • 545 ft²
4 bedroom detached house for sale in 354 Four Chimneys Crescent,
Hampton Heights,
Peterborough,
PE7 8SR, PE7 — £579,950 • 4 bed • 1 bath • 1283 ft²
5 bedroom detached house for sale in 354 Four Chimneys Crescent,
Hampton Heights,
Peterborough,
PE7 8SR, PE7 — £584,950 • 5 bed • 1 bath • 1316 ft²
3 bedroom semi-detached house for sale in 354 Four Chimneys Crescent,
Hampton Heights,
Peterborough,
PE7 8SR, PE7 — £324,950 • 3 bed • 1 bath










































































































































