**Standout Features:**
- Modern semi-detached home with 4 bedrooms
- Integral garage and parking for two cars
- Open-plan kitchen/dining room with French doors leading to a garden
- Equipped with integrated Indesit and Bosch appliances
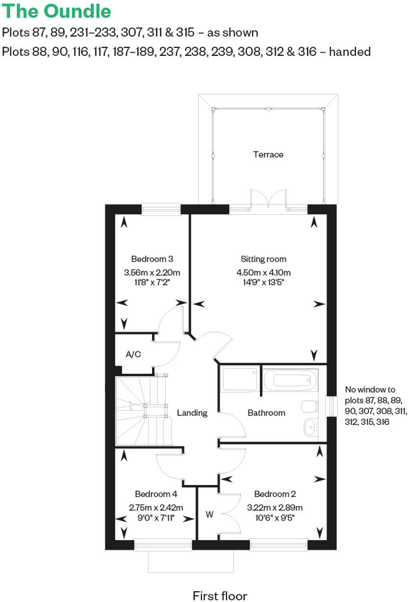
- First-floor sitting room with elegant roof terrace
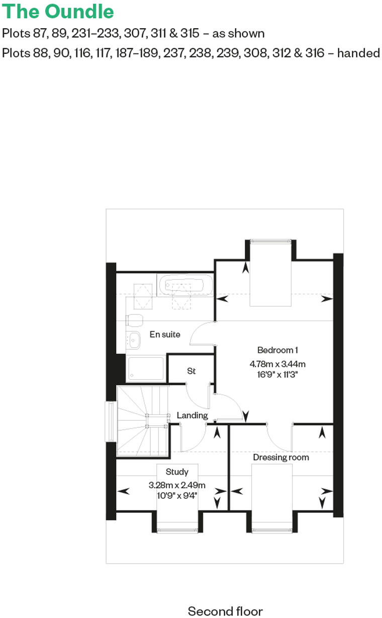
- Luxurious top-floor master suite with en suite bathroom and dressing area
- Separate utility room and study
- Stylish four-piece family bathroom
- Excellent mobile and broadband connectivity
- New build with low maintenance needs
**Concerns:**
- Relatively small size with an overall space of 582 sq ft
- Average maintenance and associated service charges
Discover comfortable living in this modern semi-detached home situated within the desirable Hampton Lakes development. Offering an abundance of light-filled space across three levels, this property is perfect for families or professionals seeking both style and function. Features such as an open-plan kitchen with sleek integrated appliances and a welcoming dining area are designed for both relaxation and entertaining, while a separate utility room enhances practicality.
The first floor boasts an expansive sitting room with french doors that lead to an inviting roof terrace, providing an ideal spot for outdoor gatherings. The master suite on the top floor serves as a private retreat, complete with a luxurious en suite and dressing area. The convenient study area offers flexibility for remote work or additional space for hobbies.
With an integral garage and parking for two cars, this home satisfies all your needs, though it's important to note the compact overall size of 582 sq ft. Don't miss out on this exclusive opportunity—properties like this in such a prime location are in high demand! Make this stylish home your own and embrace the modern lifestyle it offers.
4 bedroom detached house for sale in 354 Four Chimneys Crescent,
Hampton Heights,
Peterborough,
PE7 8SR, PE7 — £494,950 • 4 bed • 1 bath • 1126 ft²
4 bedroom detached house for sale in 354 Four Chimneys Crescent,
Hampton Heights,
Peterborough,
PE7 8SR, PE7 — £414,950 • 4 bed • 1 bath • 1157 ft²
4 bedroom detached house for sale in 354 Four Chimneys Crescent,
Hampton Heights,
Peterborough,
PE7 8SR, PE7 — £439,950 • 4 bed • 1 bath • 545 ft²
3 bedroom semi-detached house for sale in 354 Four Chimneys Crescent,
Hampton Heights,
Peterborough,
PE7 8SR, PE7 — £324,950 • 3 bed • 1 bath
4 bedroom detached house for sale in 354 Four Chimneys Crescent,
Hampton Heights,
Peterborough,
PE7 8SR, PE7 — £579,950 • 4 bed • 1 bath • 1283 ft²
5 bedroom detached house for sale in 354 Four Chimneys Crescent,
Hampton Heights,
Peterborough,
PE7 8SR, PE7 — £584,950 • 5 bed • 1 bath • 1316 ft²






























































































