Bright one-bedroom in a red-brick mansion block, minutes from King’s Road.
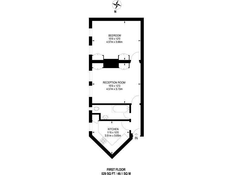
First-floor one-bedroom flat with built-in storage
Bright reception room with dining area and decorative fireplace
Access to communal garden — rare for central Chelsea
Share of freehold with a very long lease (987 years)
Solid brick period building; likely no wall insulation
Average-sized at 529 sq ft, linear layout
Area records higher-than-average crime — be aware
Moments from King’s Road shops, cafés and good schools
Located in a handsome red-brick mansion block on Mallord Street, this one-bedroom flat offers a bright, well-proportioned reception room with dining area and built-in storage. The flat sits on the first floor and enjoys access to a communal garden, bringing rare outdoor space to central Chelsea living.
The interior is neutrally finished and ready to move into, making it well suited to a first-time buyer or a buyer seeking a low-maintenance central London pied-à-terre. The property benefits from a very long lease and a share of freehold, reducing long-term tenure risk and increasing ownership control.
Practical considerations: the building dates from the early 20th century with solid brick walls and no assumed cavity insulation, and the immediate area records higher-than-average crime levels. The flat is average-sized at 529 sq ft and arranged in a straightforward linear layout — comfortable but without large secondary rooms.
Positioned moments from the King’s Road, shops, cafés and excellent schools, the apartment offers convenient city living with fast broadband and strong mobile signal. It represents a compact, characterful Chelsea home with clear potential for upgrading if a buyer wants to personalise finishes.
1 bedroom flat for sale in Chelsea Manor Street, Chelsea, London, SW3 — £500,000 • 1 bed • 1 bath • 382 ft²
1 bedroom flat for sale in Kings Road, Chelsea, London, SW3 — £562,499 • 1 bed • 1 bath • 525 ft²
1 bedroom apartment for sale in Meriden Court, Chelsea Manor Street, Chelsea SW3 — £499,000 • 1 bed • 1 bath • 366 ft²
1 bedroom flat for sale in Sloane Avenue, Chelsea, London, SW3 — £495,000 • 1 bed • 1 bath • 329 ft²
1 bedroom flat for sale in Vale Court, Chelsea, London, SW3 — £750,000 • 1 bed • 1 bath • 568 ft²
1 bedroom flat for sale in Coleherne Road, Chelsea, London, SW10 — £725,000 • 1 bed • 1 bath • 686 ft²


































































































