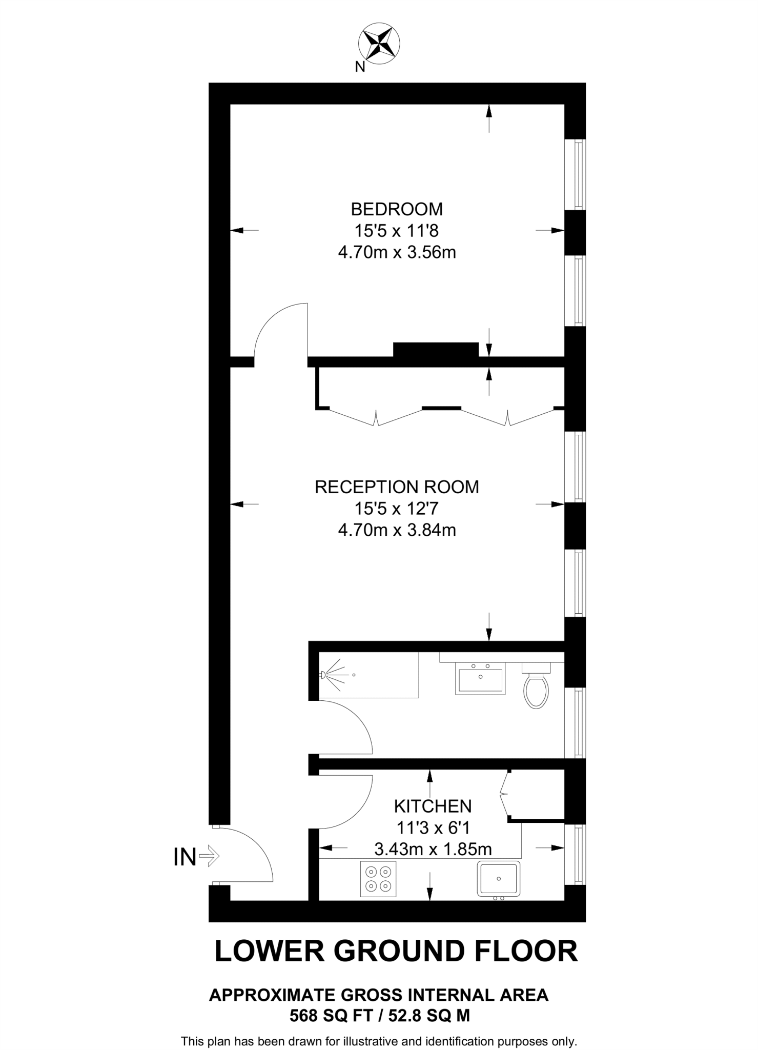
Central SW3 living with a communal garden and very long lease for confident first-time buyers.
- Bright reception room with large period windows
- Modern fitted kitchen with appliances included
- Good-sized double bedroom and sleek shower room
- Access to communal garden — rare for central Chelsea
- Long lease (986 years) and share of freehold
- Built 1900–1929 with solid brick walls, likely no insulation
- Single bathroom; 568 sq ft is average-sized for Chelsea
- Local area records higher-than-average crime rates
This bright one-bedroom flat in Vale Court offers a well-proportioned reception room, separate modern kitchen and a good-sized double bedroom — all arranged across an average-sized 568 sq ft layout. Large windows bring natural light to the living area, and residents benefit from access to a communal garden, an attractive rarity in central Chelsea. The property sits close to Fulham Road and the shops and cafés of King’s Road, with excellent mobile signal and fast broadband for working from home.
Practical strengths include a long lease (986 years) and share of freehold, mains gas heating with boiler and radiators, and a contemporary shower room. These factors make the flat straightforward to manage for a first-time buyer or owner-occupier seeking a ready-to-live-in city base with strong local amenities and good school options nearby.
Notable negatives are factual: the wider area records higher-than-average crime rates, and the building dates from 1900–1929 with solid brick walls (assumed uninsulated) — improvements such as insulation or secondary glazing may be desirable. The flat is average in size and offers a single bathroom, so it suits one person or a couple rather than a family needing more space.
Overall, this is a centrally located Chelsea one-bedroom with clear ownership advantages and immediate livability. It represents a convenient, low-hassle entry into the SW3 market, though buyers should budget for potential fabric or thermal upgrades and be mindful of local crime levels.
1 bedroom flat for sale in Redcliffe Square, Chelsea, London, SW10 — £600,000 • 1 bed • 1 bath • 688 ft²
1 bedroom flat for sale in Mallord Street, Chelsea, London, SW3 — £750,000 • 1 bed • 1 bath • 529 ft²
1 bedroom apartment for sale in Meriden Court, Chelsea Manor Street, Chelsea SW3 — £499,000 • 1 bed • 1 bath • 366 ft²
1 bedroom apartment for sale in Chelsea Manor Gardens, London, SW3 — £825,000 • 1 bed • 1 bath • 630 ft²
1 bedroom flat for sale in Harcourt Terrace, Chelsea, London, SW10 — £750,000 • 1 bed • 1 bath • 541 ft²
1 bedroom flat for sale in Kings Court South, Chelsea Manor Gardens, London, SW3 — £690,000 • 1 bed • 1 bath • 634 ft²














































































































