Freehold build plot with consent for a three-bed end-terrace and integral garage..
Conditional planning permission for three-bedroom end-terrace (ref 21/01822/FUL)
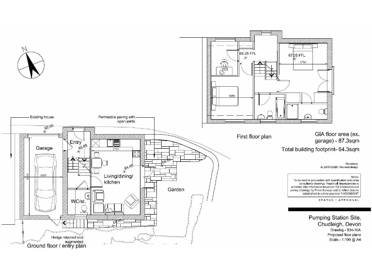
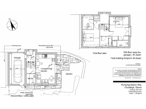
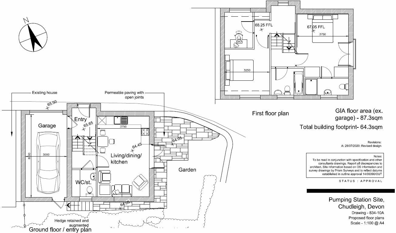
A rare development plot with conditional planning permission (ref 21/01822/FUL) for a three-bedroom end-terraced house and integral single garage. The consented layout includes an open-plan living/kitchen/dining room, downstairs cloakroom/WC, principal bedroom with en suite, two further bedrooms and a family bathroom — a straightforward design aimed at modern family living. The plot sits on a small parcel in a quiet, residential fringe location with views across the local sports ground and easy walking access to shops, schools and bus links.
The site is currently overgrown and will require clearance and a full build to complete the consented dwelling; services and build costs are not included. The plot is freehold and the finished home is estimated at around 940 sq ft, offering practical living space and an integral garage for secure parking or storage. EPC rating is to be confirmed and any buyer should factor in compliance and connection costs.
This is primarily an investment or developer opportunity for someone able to manage the build and complete conditions attached to the permission. The setting — in an affluent, low-crime small town with good broadband and nearby schools — strengthens rental and resale prospects, but the site’s small plot size and current neglected state mean realistic budgets and timelines are required.
Land for sale in Chudleigh, Newton Abbot, TQ13 — £1,000,000 • 1 bed • 1 bath • 2566 ft²
Land for sale in Chudleigh, Newton Abbot, TQ13 — £1,000,000 • 4 bed • 1 bath • 2566 ft²
Land for sale in Self Build Plot 6, Bradley Bends, Bovey Tracey, TQ13 — £185,000 • 5 bed • 1 bath • 8396 ft²
3 bedroom end of terrace house for sale in Haldon View, Chudleigh, Newton Abbot, TQ13 0LN, TQ13 — £240,000 • 3 bed • 1 bath • 1055 ft²
Land for sale in Ham Lane, Shaldon, TQ14 — £230,000 • 1 bed • 1 bath • 539 ft²
Land for sale in Lympstone , EX8 — £600,000 • 4 bed • 1 bath


















