Spacious plot with parking, large loft and landscaped sunny garden..
- Three-bedroom semi-detached with traditional brick construction
- Large 20' loft-room/store with rural views; not certified as bedroom
- Kitchen/diner with fitted Rangemaster and utility/pantry area
- Generous rear garden 50'x42' with 20' timber outbuilding
- Off-street driveway for two cars plus allocated parking opposite
- Maintenance charge circa £16 per month (service charge £192 pa)
- Slow broadband; local crime above average and area very deprived
- Planning permission existed in 2018 for single-storey rear extension
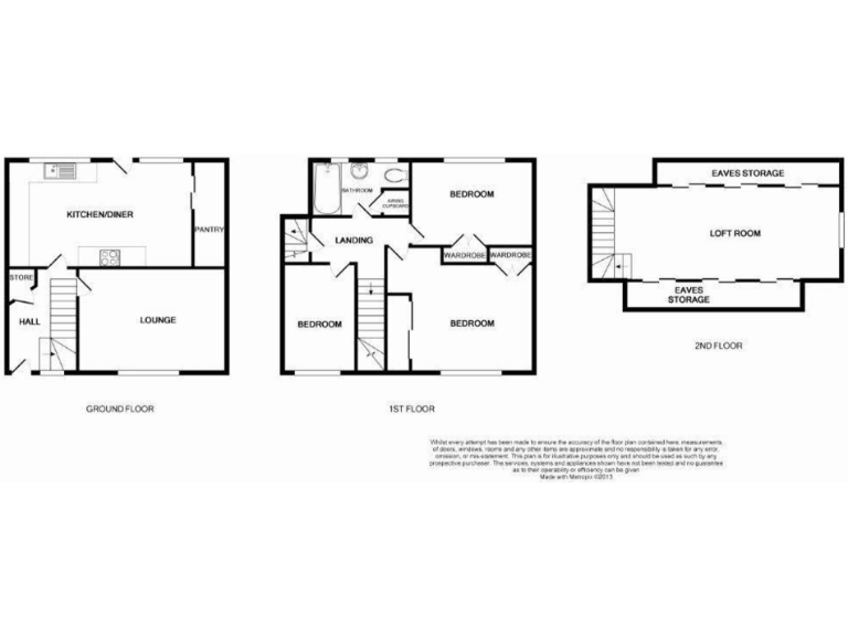
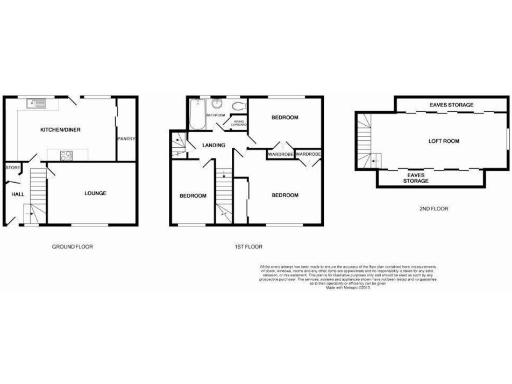
Set on the edge of a popular development, this traditional three-bedroom semi-detached house offers spacious family accommodation and a rare large loft room with open rural views. The kitchen/diner includes a fitted Rangemaster and utility area; gas central heating and UPVC windows provide practical, low-maintenance living. Outside there is generous rear garden space, a 20' timber outbuilding, allocated parking and a driveway for two cars.
The loft/store is a standout feature at around 20' with Velux windows and strong potential for conversion, subject to building regulations — it currently does not have consent to be used as a bedroom. There was planning permission in 2018 for a single-storey rear extension; prospective buyers should check current status if they plan further alterations.
Practical considerations are clear and factual: broadband speeds are slow, local crime is above average and the wider area scores as very deprived. There is a small maintenance charge of about £16 per month. The property is freehold, EPC is to be confirmed and the house has one bathroom served by three bedrooms, so purchasers seeking immediate additional bedrooms should factor in the loft’s regulatory limitations.
For a family or investor wanting a spacious plot and strong upside through sensible updating or permitted conversions, this home delivers excellent garden space, parking and a semi-rural outlook. Viewings will be most useful for those who prioritise outdoor space and renovation potential over turnkey modern finishes.
Semi-detached house for sale in Milton Road, Barry, CF62 — £222,500 • 1 bed • 1 bath • 462 ft²
3 bedroom semi-detached house for sale in Rhoose Road, Rhoose, CF62 — £299,950 • 3 bed • 2 bath • 603 ft²
3 bedroom semi-detached house for sale in Field View Road, Barry, CF63 — £220,000 • 3 bed • 1 bath • 904 ft²
3 bedroom semi-detached house for sale in Woodside Avenue, Bridgend, CF31 — £260,000 • 3 bed • 2 bath • 847 ft²
3 bedroom semi-detached house for sale in Merthyr Dyfan Road, Barry, CF62 — £375,000 • 3 bed • 1 bath • 1454 ft²
4 bedroom detached house for sale in Murlande Way, Rhoose, CF62 3HN, CF62 — £485,000 • 4 bed • 3 bath • 1098 ft²






























































