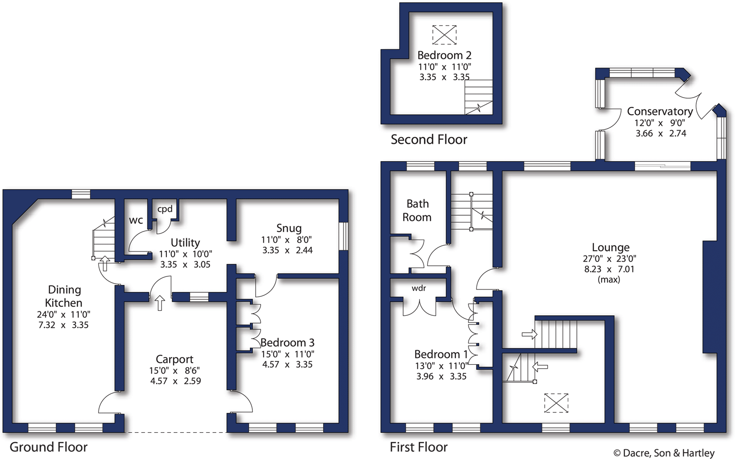
**Standout Features:**
- Charming barn conversion
- Three spacious bedrooms
- Generously sized dining kitchen and utility room
- Large lounge with rustic character
- Bright conservatory with garden views
- Well-stocked rear garden
- Off-street parking
- Gas-fired heating
- Stunning views across Worth Valley
- Located in the sought-after village of Laycock
**Potential Concerns:**
- Crime rate in the area is high
- Property constructed before 1900 with no insulation assumed
Discover the charm of this well-presented barn conversion nestled in the picturesque village of Laycock. This exceptional three-bedroom home combines rustic elegance with modern comforts, featuring a spacious dining kitchen, convenient utility room, and a generous lounge adorned with exposed beams and a cozy fireplace. The lovely conservatory invites natural light and overlooks a substantial, well-stocked garden—perfect for outdoor activities and entertaining.
The property is not only appealing for families but also offers great potential for first-time buyers or investors looking to capitalize on a desirable area. With off-street parking and gas-fired heating, practicality meets comfort. Enjoy breathtaking views across the Worth Valley and benefit from local amenities such as schools with good Ofsted ratings. While the home presents an opportunity in an area with a high crime rate and some potential structural considerations due to its pre-1900 construction, the unique blend of character and space is sure to attract those seeking exclusivity. Don’t miss out on this one-of-a-kind property—schedule your visit today!
3 bedroom barn conversion for sale in Harewood Hill, Oakworth, Keighley, West Yorkshire, BD22 — £400,000 • 3 bed • 1 bath • 1312 ft²
3 bedroom barn conversion for sale in Newsholme New Road, Oakworth, Keighley, BD22 — £535,000 • 3 bed • 2 bath • 1986 ft²
3 bedroom barn conversion for sale in Dockroyd, Oakworth, Keighley, BD22 — £359,950 • 3 bed • 1 bath • 1177 ft²
3 bedroom barn conversion for sale in Kildwick Hall Mews, Kildwick, North Yorkshire, BD20 — £750,000 • 3 bed • 2 bath • 2079 ft²
4 bedroom barn conversion for sale in Dyke, Haworth, Keighley, BD22 — £460,000 • 4 bed • 3 bath • 1106 ft²
4 bedroom end of terrace house for sale in Lower Scholes, Oakworth, Keighley, BD22 — £695,000 • 4 bed • 2 bath • 3159 ft²






















































































































