**Standout Features:**
- Extended semi-detached barn conversion.
- Three spacious bedrooms, with a walk-in wardrobe in the master.
- Large lounge and dining area ideal for family gatherings.
- Ample off-street parking for several vehicles.
- Expansive south-facing gardens adjoining open fields, offering stunning views of the Worth Valley.
- Located on the edge of Oakworth village with convenient access to local amenities.
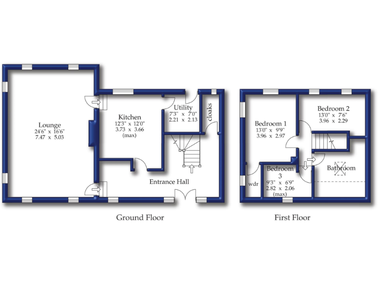
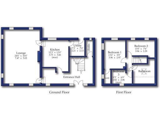
**Summary Description:**
Discover the charm of rural living with this extended three-bedroom semi-detached barn conversion, nestled on the outskirts of Oakworth. Boasting a generous layout of 1,312 square feet, this inviting home features a spacious lounge and dining area perfect for entertaining, complemented by a well-equipped kitchen and practical utility space. Enjoy the luxury of large gardens that seamlessly blend with the scenic landscape, providing an idyllic space for children to play or to simply unwind while taking in the picturesque views of the Worth Valley.
The modern fixtures throughout, combined with gas-fired heating and double glazing, ensure comfort and convenience, making it an ideal family home. While the property promises a peaceful countryside lifestyle, it is also located just two miles from Keighley town centre, where shopping and essential amenities await. Priced attractively at £400,000, this family-centric barn conversion is not just a home; it's a lifestyle choice waiting for you to embrace. Act quickly, as properties like this, offering both charm and modern living potential in such a beautiful setting, are rare to come by!
3 bedroom barn conversion for sale in Dockroyd, Oakworth, Keighley, BD22 — £359,950 • 3 bed • 1 bath • 1177 ft²
4 bedroom end of terrace house for sale in Lower Scholes, Oakworth, Keighley, BD22 — £695,000 • 4 bed • 2 bath • 3159 ft²
3 bedroom barn conversion for sale in Newsholme New Road, Oakworth, Keighley, BD22 — £535,000 • 3 bed • 2 bath • 1986 ft²
4 bedroom barn conversion for sale in Dyke, Haworth, Keighley, BD22 — £460,000 • 4 bed • 3 bath • 1106 ft²
3 bedroom terraced house for sale in Lower Scholes, Oakworth, BD22 — £325,000 • 3 bed • 1 bath • 935 ft²
3 bedroom barn conversion for sale in Laycock Lane, Laycock, Keighley, West Yorkshire, BD22 — £395,000 • 3 bed • 2 bath • 1755 ft²






































































































