Spacious family living with south-facing low-maintenance garden and ample parking.
Executive detached house with four bedrooms
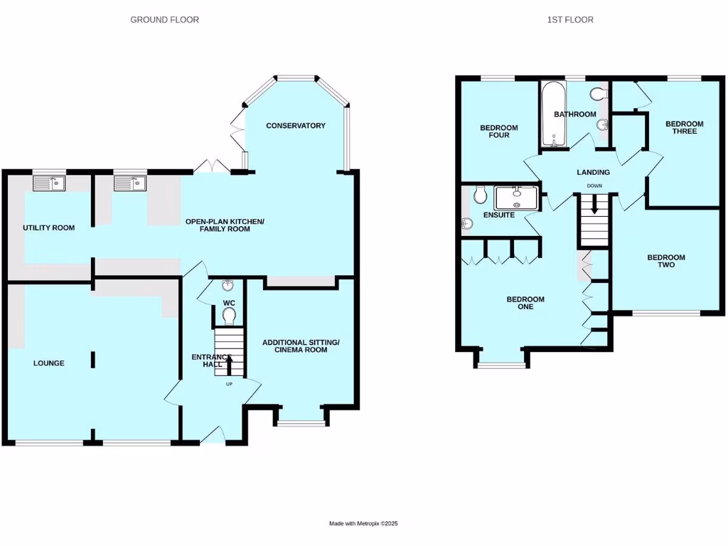
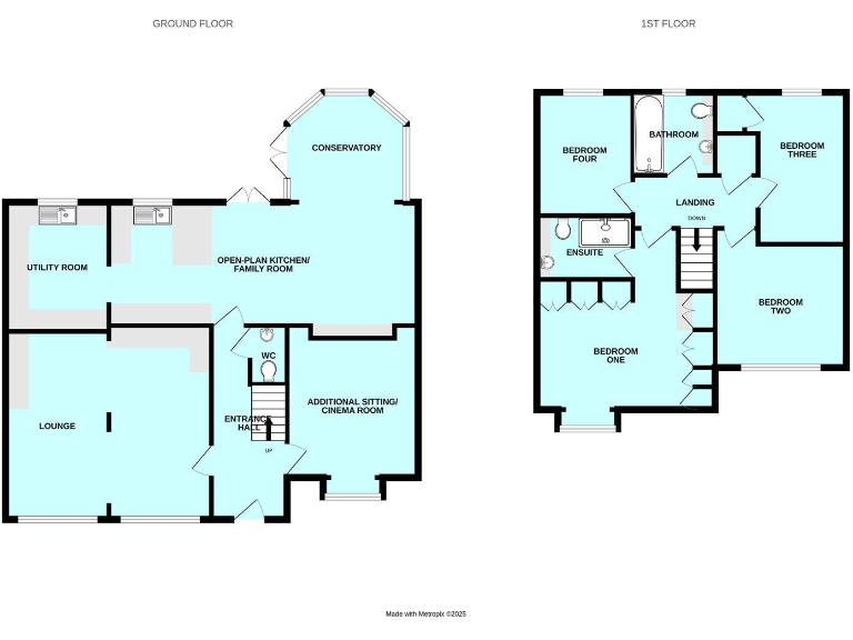
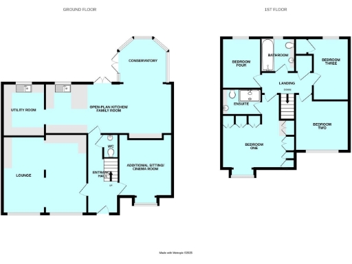
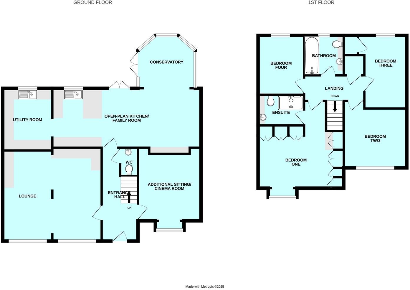
This executive-style detached house in Elburton offers comfortable family living across two well-proportioned storeys. The ground floor centres on a generous open-plan kitchen/family room that flows into a conservatory, plus a separate lounge and a dedicated sitting/cinema room — useful as a playroom, home office or media space. Four bedrooms upstairs include a principal bedroom with built-in wardrobes and an ensuite.
Outside the property benefits from a south-facing landscaped garden with composite decking and artificial lawn for low-maintenance outdoor living, a substantial covered garden building and an outside shed. The front provides plentiful off-road parking on a patterned concrete driveway, with an integral garage and gated side access to the rear.
Practical features include double glazing, mains gas central heating and multiple reception areas that suit family life and entertaining. The house was built around 1996–2002 and presents in good order, offering straightforward move-in accommodation for buyers seeking a modern detached home in a sought-after suburb.
Notable negatives: broadband speeds in the area are slow, which may affect home working or heavy streaming; council tax is band E (above average); while the house is modern, buyers wanting the very latest fittings may wish to update kitchen or bathrooms over time. There is no flooding risk recorded and mobile signal is excellent.
4 bedroom semi-detached house for sale in Sherford Road, Elburton, Plymouth, PL9 — £550,000 • 4 bed • 3 bath • 1890 ft²
4 bedroom detached house for sale in Roseveare Close, Plymouth, Devon, PL9 — £495,000 • 4 bed • 2 bath • 1409 ft²
4 bedroom detached house for sale in The Hollows, Elburton, Plymouth, Devon, PL9 — £460,000 • 4 bed • 2 bath • 2010 ft²
4 bedroom detached house for sale in Kimberly Drive, Crownhill, Plymouth, PL6 — £545,000 • 4 bed • 2 bath • 1693 ft²
4 bedroom detached house for sale in Plymstock, Plymouth, PL9 — £500,000 • 4 bed • 2 bath • 1733 ft²
4 bedroom detached house for sale in Southgate Close, Plymouth, Devon, PL9 — £390,000 • 4 bed • 1 bath • 1045 ft²


































































































