Spacious modern home with woodland outlook and low-maintenance garden.
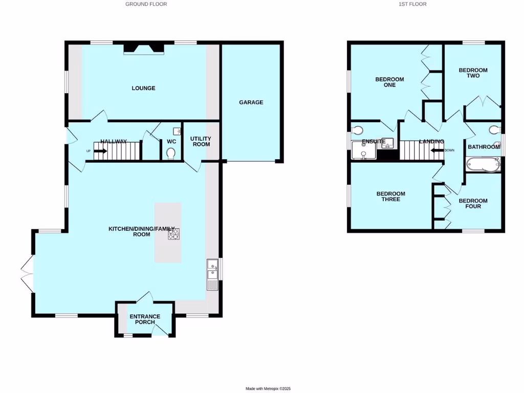
4 bedroom detached family home with ensuite and family bathroom
Stunning extended open-plan kitchen/dining/family room with skylights
Under-floor heating in main living area; double glazing throughout
Landscaped low-maintenance garden backing onto woodland views
Driveway parking plus single garage with power and lighting
About 1,733 sq ft; freehold; built circa 2003–2006
Council Tax Band E (above-average running cost)
Very low local crime; fast broadband and excellent mobile signal
This extended four-bedroom detached house in Plymstock combines contemporary open-plan living with woodland views, ideal for families seeking space and low-maintenance grounds. The superb open-plan kitchen/dining/family room with island, skylights and under-floor heating is the heart of the home and suits everyday family life or entertaining.
Well-presented accommodation continues with a generous lounge featuring a wood burner, useful utility room, downstairs cloakroom and a master bedroom with ensuite. The property totals about 1,733 sq ft, is freehold and benefits from double glazing, mains gas central heating and a garage with driveway parking.
Outside is a landscaped, low-maintenance garden with decking and artificial lawn, backing on to adjacent woodland for privacy and views. The location sits in a very low-crime, affluent suburb with excellent mobile and broadband connectivity and good local schools — practical for commuting and family life.
Notable points to consider: council tax is Band E (above average), and while the home is modern and well-finished, buyers seeking large plots or extensive gardens may find the plot decent but not expansive. The property was constructed c.2003–2006 so buyers should note the usual minor wear expected with a home of this age.
3 bedroom house for sale in Plymstock, Plymouth, PL9 — £350,000 • 3 bed • 1 bath • 1004 ft²
4 bedroom detached house for sale in Plymstock, Plymouth, PL9 — £425,000 • 4 bed • 2 bath • 1446 ft²
4 bedroom detached house for sale in Plymstock, Plymouth, PL9 — £529,950 • 4 bed • 2 bath • 1863 ft²
4 bedroom detached house for sale in Southgate Close, Plymouth, Devon, PL9 — £390,000 • 4 bed • 1 bath • 1045 ft²
4 bedroom detached house for sale in Kitter Drive, Staddiscombe, Plymouth., PL9 — £290,000 • 4 bed • 2 bath • 942 ft²
5 bedroom detached house for sale in Paddock Close, PLYMOUTH, Devon, PL9 — £575,000 • 5 bed • 2 bath • 1626 ft²


















































































































































































