**Standout Features:**
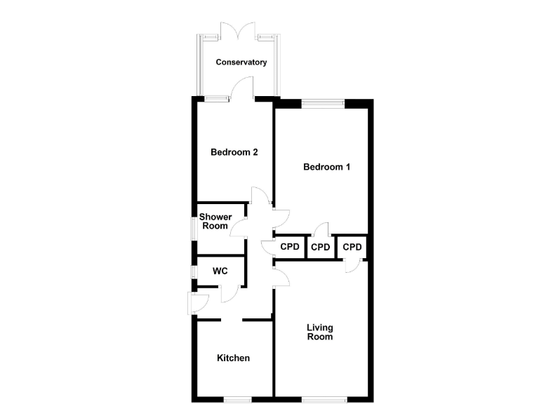
- Spacious semi-detached bungalow in a desirable cul-de-sac
- Two double bedrooms, generous living room, and conservatory
- Secluded, low-maintenance garden with garage and ample parking
- Chain-free sale and newer central heating system
- Excellent mobile and broadband connectivity
**Concerns:**
- Requires cosmetic updates and general upkeep
- Higher crime rate in the area
This charming semi-detached bungalow, located in a quiet cul-de-sac, is a fantastic opportunity for families, first-time buyers, or investors looking for a project. Boasting spacious proportions, the bungalow features two generous double bedrooms, a large living room, and an inviting conservatory that opens to a secluded garden—a perfect oasis for relaxation. With the convenience of a garage and off-street parking, you can easily accommodate visitors.
While the property’s mid-20th-century design shows signs of wear, it presents a unique opportunity to modernize and add personal touches to make it your own. Its competitive price of £270,000, alongside the no onward chain, speaks to its excellent investment potential. Although the crime rate is higher than average, the location is otherwise practical for family life, being within easy reach of local amenities and a selection of good-rated schools. Don’t miss your chance to transform this bungalow into a personal haven; schedule your viewing today!
2 bedroom semi-detached bungalow for sale in Wellington Gardens, Selsey, PO20 — £290,000 • 2 bed • 1 bath • 603 ft²
3 bedroom detached bungalow for sale in Croft Road, Selsey, PO20 — £360,000 • 3 bed • 1 bath • 961 ft²
3 bedroom detached bungalow for sale in Croft Road, Selsey, PO20 — £475,000 • 3 bed • 1 bath • 1136 ft²
2 bedroom detached bungalow for sale in Wellington Gardens, Selsey, PO20 — £340,000 • 2 bed • 1 bath • 787 ft²
2 bedroom semi-detached bungalow for sale in Northfield, Selsey, PO20 — £260,000 • 2 bed • 1 bath • 606 ft²
2 bedroom semi-detached bungalow for sale in Harbour View Road, Pagham, Bognor Regis, West Sussex, PO21 — £300,000 • 2 bed • 1 bath • 904 ft²


















































