### Standout Features:
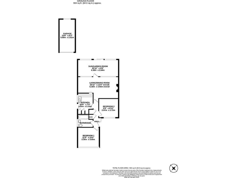
- **Type:** Semi-Detached Bungalow
- **Bedrooms:** 2
- **Size:** 904 sq ft
- **Garden:** Westerly rear with patio
- **Parking:** Driveway and detached garage
- **Heating:** Gas central heating with double glazing throughout
- **Condition:** In need of cosmetic updating, but structurally sound
- **Chain Status:** NO ONWARD CHAIN
- **Crime Rate:** Very low in an affluent area
### Summary:
Discover this charming semi-detached bungalow located in a sought-after residential area. Boasting two spacious bedrooms and a generous living/dining room, this 904 sq ft layout offers ample potential for customization. The home features modern double glazing, a gas heating system, and a sun room that opens directly onto a tranquil westerly-facing garden, perfect for enjoying evenings in the outdoors.
While the property requires some cosmetic updating, it presents a blank canvas for those looking to imbue their personal style. The kitchen is outfitted with built-in units and provides a serving hatch to the dining area, signaling future renovation opportunities. The garage adds extra storage or parking convenience, enhancing its value for first-time buyers or investors seeking a property with great rental potential.
Located in a quiet, low-crime area with excellent local schools and convenient amenities like parks and bus services nearby, this bungalow provides not only comfort and security but also a chance for future flexibility. Note that while the property is well-priced at £300,000 and chain-free, it’s a rare opportunity that may not last longer—don’t miss out on making this your new home!
2 bedroom detached bungalow for sale in Langley Grove, Aldwick, Bognor Regis, West Sussex, PO21 — £400,000 • 2 bed • 1 bath • 1055 ft²
2 bedroom semi-detached bungalow for sale in Godman Close, Aldwick, Bognor Regis, West Sussex, PO21 — £320,000 • 2 bed • 1 bath • 956 ft²
2 bedroom semi-detached bungalow for sale in Southwark Walk, Aldwick, Bognor Regis, West Sussex, PO21 — £270,000 • 2 bed • 1 bath • 639 ft²
2 bedroom detached bungalow for sale in Mornington Crescent, Felpham, PO22 — £357,500 • 2 bed • 1 bath • 722 ft²
2 bedroom semi-detached bungalow for sale in Wellington Gardens, Selsey, PO20 — £290,000 • 2 bed • 1 bath • 603 ft²
2 bedroom semi-detached bungalow for sale in Frandor Road, Bognor Regis, PO21 — £260,000 • 2 bed • 1 bath • 589 ft²






















































