W13 8LY - 6 bedroom detached house for sale in Waldeck Road, London,…

View on Property Piper

6 bedroom detached house for sale in Waldeck Road, London, W13

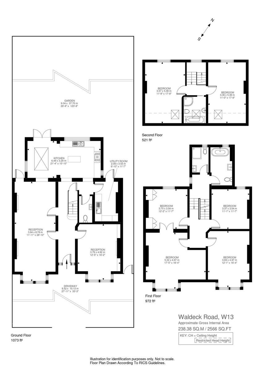
Summary - 8 WALDECK ROAD LONDON W13 8LY

6 bed 3 bath Detached

**Standout Features:**
- Elegant detached family home in the prestigious St Stephens area of West Ealing
- Six spacious bedrooms and three modern bathrooms
- Expansive 120ft rear garden, ideal for outdoor activities
- Two stylish reception rooms perfect for entertaining
- Off-street parking and potential for extension (STPP)
- Close proximity to West Ealing Station, with excellent transport links
- Strong community and access to highly-rated schools

Positioned in the highly sought-after St Stephens neighborhood, this substantial detached home offers an exceptional blend of period charm and contemporary living. Spanning three floors, the property features six generously-sized bedrooms and three stylish bathrooms, catering perfectly to family life. The two elegant reception rooms invite comfortable living and entertaining, complemented by a well-equipped kitchen and convenient utility room.

Step outside to discover a magnificent 120ft garden, a personal oasis for relaxation and gatherings. With off-street parking and the exciting potential for future extensions through planning permissions, this home is tailored for growing families looking to create their dream space. Enjoy an enviable location just a short walk from West Ealing Station, ensuring quick links to central London and a vibrant local community filled with boutique shops and stellar schooling options. This property presents a unique opportunity—do not miss your chance to make it your forever home!

Property Details

Image Descriptions

Floorplan Description

Rooms

Textual Property Features

Detected Visual Features

Nearby Schools

Nearest Bars And Restaurants

,,,,}

Nearest General Shops

,,}

Nearest Grocery shops

,,}

Nearest Supermarkets

,,}

Nearest Religious buildings

,,}

Nearest Medical buildings

,,,}

Nearest Airports

,}

Nearest Leisure Facilities

,,,,}

Nearest Tourist attractions

,,}

Nearest Train stations

,,,,}

Nearest Bus stations and stops

,,,,}

Nearest Hotels

,,}

Tags

Local Market Stats

AirBnB Data

Similar Properties

Meta

High Res Images

Compatible Images

Low res Images

Thumbnails

Raw Images

High Res Floorplan Images

Compatible Floorplan Images

Low res Floorplan Images

FloorplanImages Thumbnail

Raw Floorplan Images