Comfortable single-level living with parking, garage and garden near the seafront.
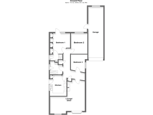
Three bedroom detached bungalow arranged all on one level
Newly renovated kitchen, family bathroom and main bedroom ensuite
L-shaped lounge/diner with serving hatch to the kitchen
Generous driveway for several cars plus long 31ft garage
Good-sized rear garden with paved patio for entertaining
Approximately 1,034 sq ft; freehold tenure
Double glazing installed before 2002 — may need eventual replacement
Built 1967–1975; buyers should verify services and consents
A recently refreshed three-bedroom detached bungalow arranged all on one level, offering comfortable living for those looking to downsize without compromise. The L-shaped lounge/diner opens from a modern fitted kitchen via a handy serving hatch, creating a sociable central space. The main bedroom benefits from an ensuite and there is a separate family bathroom.
Practical advantages include a new driveway with ample parking, a long garage (approximately 31ft) and a good-sized rear garden with a paved patio ideal for outdoor entertaining. The property measures about 1,034 sq ft and is freehold, heated by a mains-gas boiler and radiators.
The house was constructed in the late 1960s–1970s and has been newly renovated with a contemporary kitchen and bathrooms; however the double glazing dates from before 2002 and buyers should budget for longer-term window replacement. The home sits in an ageing urban community close to local shops, frequent buses and coastal cliff-top walks.
Practical notes: council tax is moderate and crime levels are average. Local state primary schools nearby include establishments rated 'requires improvement' as well as 'good' secondaries; purchasers should check services, consents and appliance warranties as needed.
3 bedroom detached bungalow for sale in Victoria Avenue, Peacehaven, East Sussex, BN10 — £280,500 • 3 bed • 2 bath • 1034 ft²
3 bedroom detached bungalow for sale in Horsham Avenue North, Peacehaven, BN10 8DU, BN10 — £375,000 • 3 bed • 2 bath • 973 ft²
2 bedroom bungalow for sale in Cissbury Avenue, Peacehaven, BN10 — £349,950 • 2 bed • 1 bath • 629 ft²
3 bedroom detached bungalow for sale in Cissbury Avenue, Peacehaven, BN10 8TJ, BN10 — £415,000 • 3 bed • 1 bath • 829 ft²
3 bedroom detached bungalow for sale in Southview Road, Peacehaven, BN10 — £399,950 • 3 bed • 2 bath • 1399 ft²
3 bedroom detached bungalow for sale in Hoddern Avenue, Peacehaven, BN10 7PH, BN10 — £375,000 • 3 bed • 2 bath • 818 ft²














































































