Comfortable single-storey living with garage, garden and retirement purchase options.
- Newly renovated kitchen, family bathroom and en-suite shower
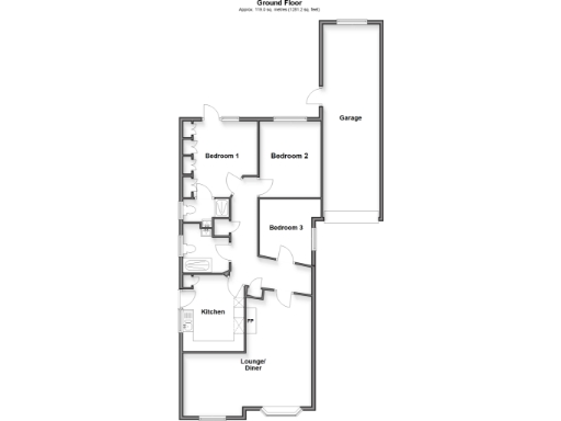
- L-shaped lounge/diner with serving hatch to kitchen
- Large driveway for several cars plus long garage
- Good-sized rear garden with patio, low-maintenance planting
- Freehold tenure; mains gas boiler and radiators
- Lifetime Lease option only for buyers aged 60+ (terms vary)
- Advertised Lifetime Lease guide price differs from full market price
- Double glazing fitted before 2002 may need future replacement
This detached three-bedroom bungalow in Peacehaven has been freshly updated and set up for comfortable single-level living. The L-shaped lounge/diner and modern fitted kitchen provide practical day-to-day space, while the main bedroom benefits from an en-suite shower. Outside, a new multi-car driveway, long garage and decent rear garden with patio give low-maintenance outdoor space and useful storage.
The property is being promoted as suitable for retirement living and can be secured through a Homewise Lifetime Lease for buyers aged 60 and over. The advertised full market price is £425,000; the Homewise guide Lifetime Lease price shown is £280,500 (illustrative saving around 33%). Actual Lifetime Lease cost depends on age, circumstances and the percentage share you choose (up to 50%). If you are under 60 you can still buy at the full market price.
Practical details: the bungalow is freehold, newly renovated with new kitchen and bathrooms, double glazing installed before 2002, mains gas boiler and radiators, and no flooding risk. Nearby amenities include local shops, regular buses and cliff-top walks, while local schools and services are within easy reach. Buyers should verify all specifics, including any Lifetime Lease terms and the final price based on personal circumstances.
Notable cautions: the Lifetime Lease option is only available to over-60s and the saving varies by individual; double glazing is older and may need future replacement; council tax is moderate and the wider area is classed as an ageing urban community with average crime levels. All measurements and legal/title details should be confirmed by your solicitor.
3 bedroom detached bungalow for sale in Phyllis Avenue, Peacehaven, East Sussex, BN10 — £281,000 • 3 bed • 1 bath • 890 ft²
3 bedroom detached bungalow for sale in Vernon Avenue, Woodingdean, Brighton, East Sussex, BN2 — £363,500 • 3 bed • 2 bath • 1197 ft²
3 bedroom detached bungalow for sale in Victoria Avenue, Peacehaven, East Sussex, BN10 — £425,000 • 3 bed • 2 bath • 1034 ft²
3 bedroom chalet for sale in Southdown Avenue, Peacehaven, East Sussex, BN10 — £297,500 • 3 bed • 2 bath • 1098 ft²
3 bedroom detached bungalow for sale in Balsdean Road, Woodingdean, Brighton, East Sussex, BN2 — £369,500 • 3 bed • 2 bath • 1357 ft²
3 bedroom semi-detached bungalow for sale in Willow Walk, Newhaven, East Sussex, BN9 — £271,000 • 3 bed • 1 bath • 394 ft²


































































