Panoramic 20th-floor outlook with large outdoor living and full concierge services.
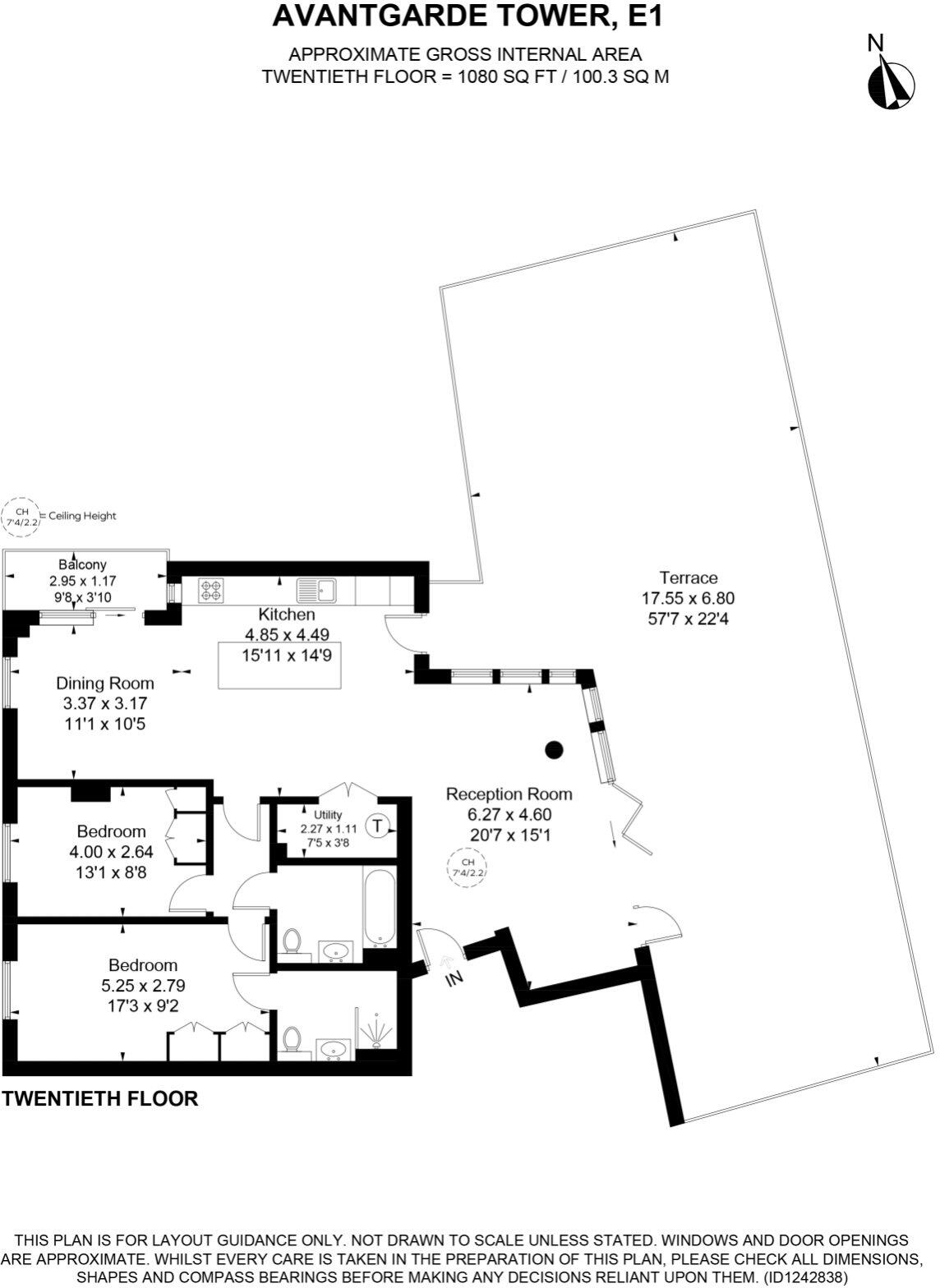
20th-floor penthouse level with panoramic London views
Large private terrace dramatically increases outdoor living space
Over 1,000 sq ft lateral internal space, open-plan living
24-hour concierge plus wellness and fitness centre on site
Secure allocated parking available by separate negotiation
Long lease (984 years) — strong tenure position
High annual service charge (£11,512) and expensive council tax
Inner-city Shoreditch location; busy area with higher crime levels
Set on the twentieth (penthouse) level, this spacious two-bedroom, two-bath lateral flat offers more than 1,000 sq ft of internal space and an exceptional terrace with sweeping London views. The open-plan reception and high-spec kitchen create a bright, sociable core for everyday living and entertaining, while both bedrooms provide generous built-in storage and a principal en-suite for convenience.
Residents benefit from 24-hour concierge, on-site wellness and fitness facilities, and secure allocated parking available by separate negotiation. The property is double-glazed, built post-2012 and runs on a community electricity/heating scheme, which simplifies services but ties you to communal energy arrangements.
Important practical points: the lease is very long (984 years) but the service charge is high (£11,512 pa) and council tax is described as expensive. The location in Shoreditch places you amid excellent dining, boutique shopping and transport links, though the immediate neighbourhood is a busy inner-city area with higher crime statistics and a lively, student-centred atmosphere.
3 bedroom flat for sale in Avantgarde Place, London, E1 — £1,250,000 • 3 bed • 2 bath • 1062 ft²
3 bedroom flat for sale in Avantgarde Place, Shoreditch, E1 — £925,000 • 3 bed • 2 bath • 934 ft²
1 bedroom flat for sale in Avantgarde Place London E1 — £600,000 • 1 bed • 1 bath • 529 ft²
3 bedroom penthouse for sale in Worship Street, London, EC2A — £9,900,000 • 3 bed • 3 bath • 2724 ft²
2 bedroom flat for sale in Curtain Road, Shoreditch, EC2A — £1,000,000 • 2 bed • 2 bath • 1033 ft²
1 bedroom penthouse for sale in Redchurch Street, London, E2 — £800,000 • 1 bed • 1 bath • 896 ft²


































































































































