Historic features meet high-spec kitchen and versatile outbuildings.
Spacious Victorian home with four large bedrooms
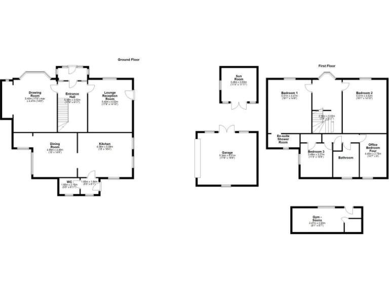
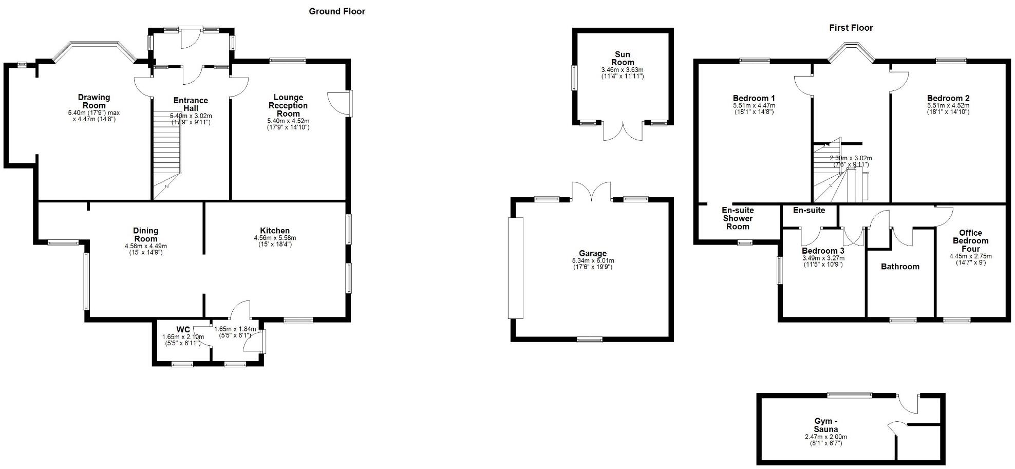
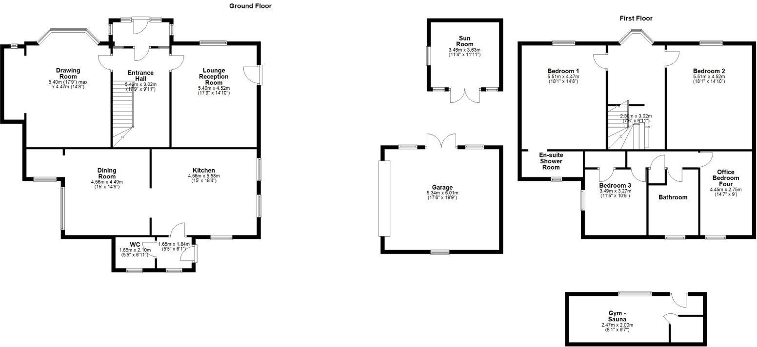
This imposing Victorian house blends genuine period character with contemporary living across four generous bedrooms and substantial living space. Antique panelling, carved fireplaces and a hand-painted stained-glass window sit alongside a modern shaker kitchen with granite worktops and high-spec appliances. The extensive plot includes wrought-iron electric gates, a turning circle, double detached garage and high-walled, enclosed gardens — ideal for privacy and family life.
Flexible ancillary spaces add value: a multipurpose outbuilding with shower, utility area and sauna could serve as a gym, guest room or home office, and a separate summerhouse provides further garden living space. The property is walking distance to Retford town centre and the railway station with direct links to London, with local schools and parks close by.
Important purchase notes: the property will be sold at auction and is offered as a flying freehold. Services and appliances have not been tested; buyers should commission surveys and checks. The local area records higher crime rates and marked deprivation indices, which may affect insurance, security needs and long-term resale considerations.
Overall this is a rare opportunity for buyers seeking a character-packed family home with substantial outdoor space and flexible outbuildings. It will particularly suit purchasers prepared to complete pre-auction due diligence and factor local area conditions into their plans.
3 bedroom end of terrace house for sale in Armstrong Road, Retford, DN22 — £120,000 • 3 bed • 1 bath • 1148 ft²
4 bedroom terraced house for sale in Babworth Road, Retford, DN22 — £295,000 • 4 bed • 1 bath • 1895 ft²
5 bedroom semi-detached house for sale in Lime Tree Avenue, Retford, DN22 — £350,000 • 5 bed • 2 bath • 2000 ft²
4 bedroom terraced house for sale in West Carr Road, Retford, DN22 — £190,000 • 4 bed • 2 bath • 932 ft²
5 bedroom semi-detached house for sale in Queen Street, Retford, DN22 — £320,000 • 5 bed • 3 bath • 2064 ft²
4 bedroom town house for sale in Spicers Court, Retford, DN22 — £210,000 • 4 bed • 2 bath • 1366 ft²






































































































































































































































































































