Large period family home with gardens, parking and modernised kitchen-diner.
Five double bedrooms across three floors
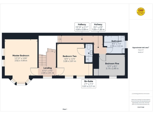
This period semi-detached house on Lime Tree Avenue combines generous Victorian proportions with updated living spaces across about 2,000 sq ft. The roomy ground floor includes two large reception rooms with bay windows and a modern kitchen-diner that opens onto utility space and a downstairs WC — practical for family life and entertaining. Five double bedrooms are arranged across three floors, with an en-suite to one bedroom and a family bathroom on the first floor. A useful cellar adds storage and scope for adaptation.
Outside, the property sits on a decent plot with enclosed rear gardens featuring patio, decking and lawn areas, plus off-street parking to the front for at least two cars (the forecourt can accommodate several vehicles). Recent refurbishment work has refreshed key living areas and fittings, so the house feels contemporary while retaining period character like high ceilings and bay windows.
Be aware of a few material points: the EPC rating is E, the solid-brick walls are assumed to have no insulation, and the local crime level is above average. These factors may affect running costs and comfort and should be considered alongside the property's clear space and layout advantages. The home is freehold and in council tax Band C.
This property will suit families seeking large, characterful rooms and outdoor space close to schools and amenities, or buyers planning further energy-efficiency improvements. A survey is recommended to check services and any remaining works after renovation.
5 bedroom semi-detached house for sale in Lime Tree Avenue, Retford, Nottinghamshire, DN22 — £360,000 • 5 bed • 2 bath • 2142 ft²
4 bedroom town house for sale in Holly Road, Retford, DN22 — £240,000 • 4 bed • 1 bath • 1345 ft²
4 bedroom semi-detached house for sale in Lime Tree Avenue, Retford, DN22 — £315,000 • 4 bed • 2 bath • 1466 ft²
4 bedroom terraced house for sale in Babworth Road, Retford, DN22 — £295,000 • 4 bed • 1 bath • 1895 ft²
5 bedroom house for sale in Station Road, Retford, DN22 — £150,000 • 5 bed • 2 bath • 1455 ft²
4 bedroom terraced house for sale in Victoria Road, Retford, DN22 — £195,000 • 4 bed • 3 bath • 695 ft²






































































































































































