CV11 7AZ - 2 bed shared ownership twobed, CV11 7AZ

View on Property Piper

2 bedroom semi-detached house for sale in Plot 77, Callendar Farm, Watling Street, Nuneaton, Warwickshire, CV11

Summary - 13 13 13 13 Unit 77, Callendar Farm, Watling Street, Nuneaton, Warwickshire, CV11 CV11 7AZ

2 bed 1 bath Semi-Detached

New two-bed semi on 40% Shared Ownership with 2 parking spaces and garden.
Two double bedrooms with built-in wardrobes
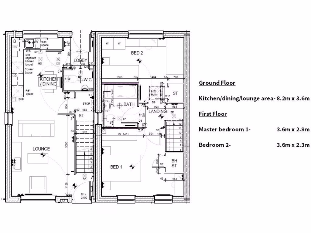
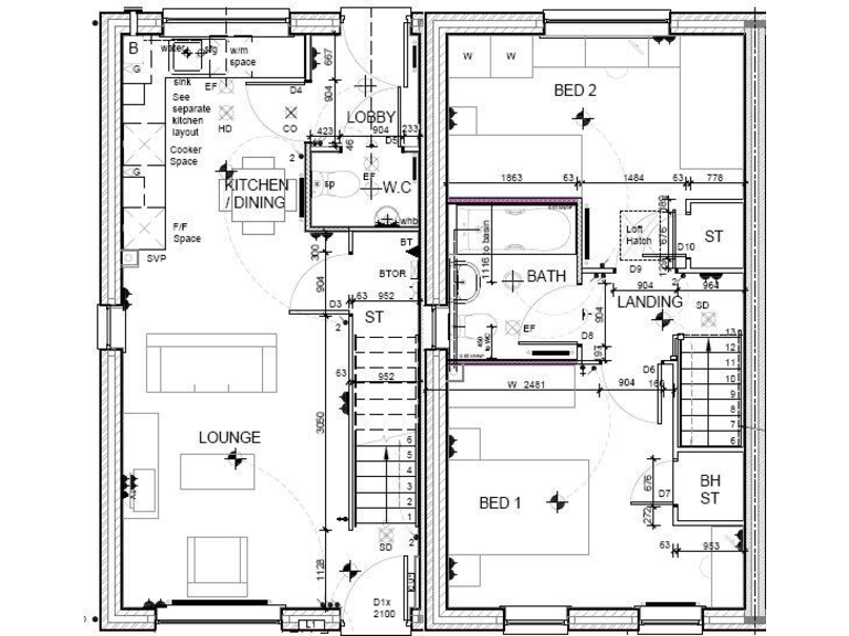
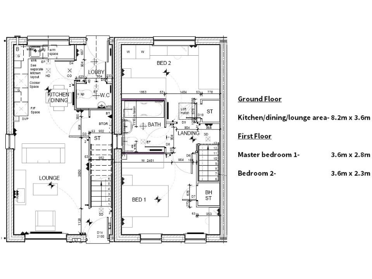
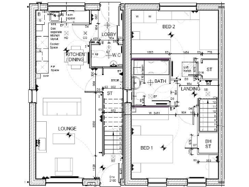
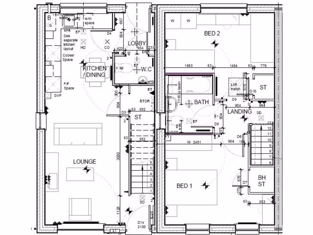
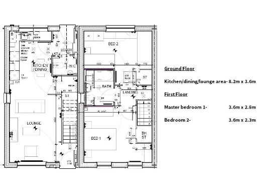
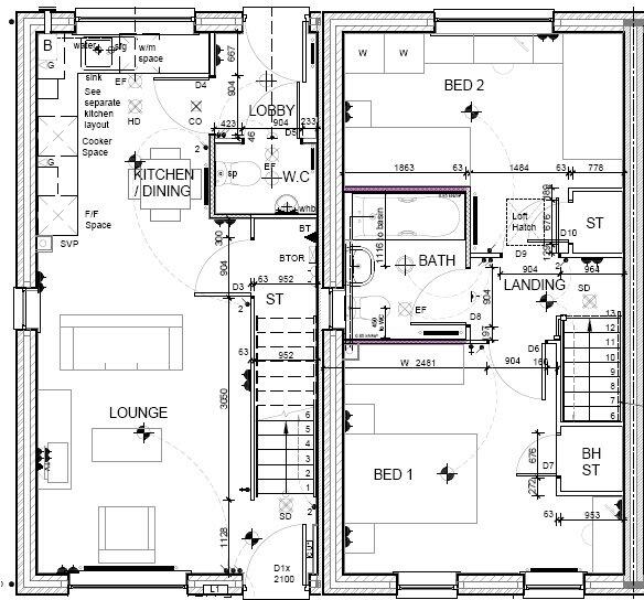
Plot 77 is a newly built two-bedroom semi offering an affordable route onto the property ladder via 40% Shared Ownership. The ground floor opens into an open-plan lounge/kitchen with upgraded kitchen units, integrated hob, oven and extractor, plus a convenient cloakroom/WC and storage. Two double bedrooms upstairs have built-in wardrobes, accompanied by a family bathroom with shower-over-bath.

Practical extras include two off-street parking spaces, turfed rear garden, landscaped front and gas central heating. Vinyl flooring is fitted to wet areas and the kitchen/diner for easy maintenance, and the home benefits from fast broadband and standard mobile signal—useful for homeworking or streaming.

This home suits first-time buyers seeking low-entry costs and modern, low-maintenance living close to transport links, schools and shops. It is leasehold Shared Ownership (40% share) with a total rent of £377.70 pcm; buyers should budget for rent, any service charges and the usual leasehold considerations. The development sits in an area with higher deprivation metrics, so prospective buyers should review local amenities and long-term plans for the neighbourhood.

Property Details

Image Descriptions

Floorplan Description

Rooms

Textual Property Features

Target Audience

AI Tags

Detected Visual Features

Nearby Schools

Nearest Bars And Restaurants

,,,,}

Nearest General Shops

,,}

Nearest Grocery shops

,,}

Nearest Supermarkets

,,}

Nearest Religious buildings

,,}

Nearest Medical buildings

,,,}

Nearest Airports

}

Nearest Leisure Facilities

,,,,}

Nearest Tourist attractions

,,}

Nearest Train stations

,,,,}

Nearest Bus stations and stops

,,,,}

Nearest Hotels

,,}

Tags

Local Market Stats

Similar Properties

Meta

High Res Images

Compatible Images

Low res Images

Thumbnails

Raw Images

High Res Floorplan Images

Compatible Floorplan Images

Low res Floorplan Images

FloorplanImages Thumbnail

Raw Floorplan Images