CV11 7AZ - 2 bed modern two bedroom home, CV11 7AZ

View on Property Piper

2 bedroom semi-detached house for sale in Plot 78, Callendar Farm, Watling Street, Nuneaton, Warwickshire, CV11

Summary - 11 11 11 11 11 Unit 78, Callendar Farm, Watling Street, Nuneaton, Warwickshire, CV11 CV11 7AZ

2 bed 1 bath Semi-Detached

Affordable shared-ownership starter with parking, garden and low-maintenance interior.
- 40% Shared Ownership with £377.70pcm rent
- Leasehold with 123 years remaining
- Newly renovated; upgraded kitchen units and new flooring
- Two double bedrooms with built-in wardrobes
- One bathroom (shower over bath); vinyl wet-area flooring
- Two off-road parking spaces and small rear garden
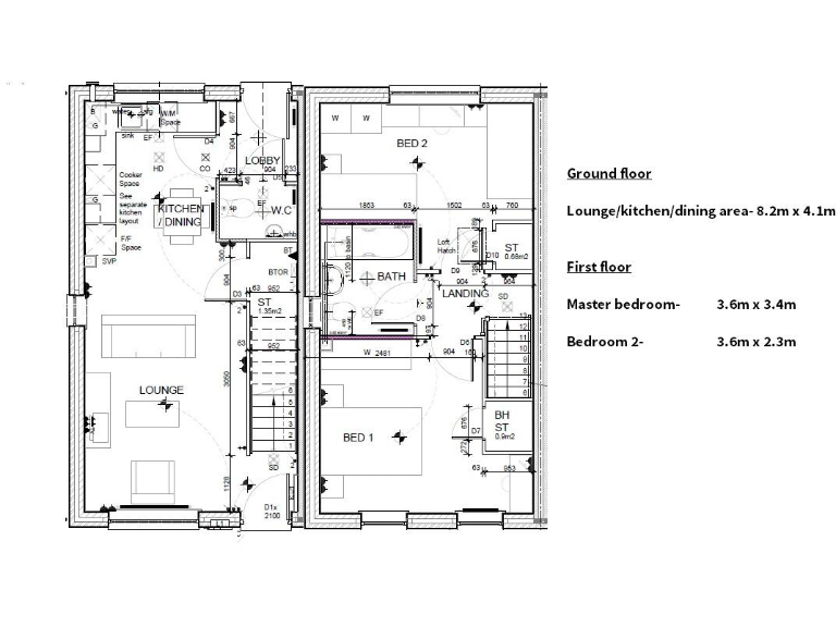
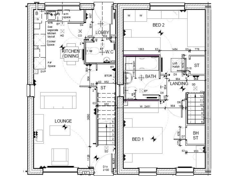
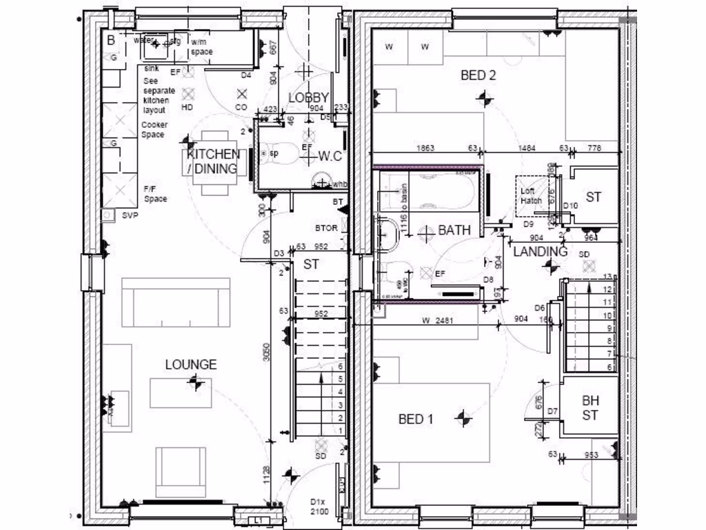
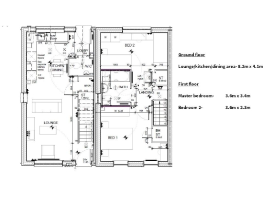
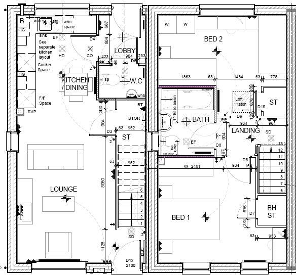
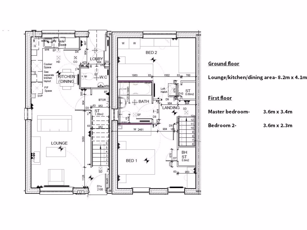
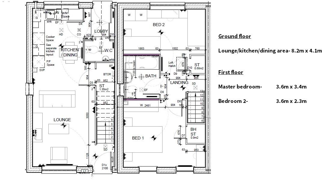
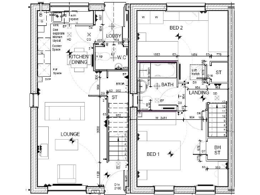
- Approximately 750 sq ft; traditional two-storey layout
- Located in a very deprived area; check resale risks
This newly built two-bedroom semi offers an affordable route onto the property ladder with a modern open-plan ground floor. The upgraded kitchen units, fitted hob, oven and extractor, plus vinyl flooring to the kitchen, bathroom and WC give a low-maintenance finish ready for immediate occupation. Two built-in wardrobes and two off-road parking spaces add practical value for couples or small families.

The home is offered as 40% Shared Ownership with a monthly rent of £377.70 on the remaining share and a lease of 123 years remaining. The property is leasehold—buyers should factor ongoing rent and any service charges into affordability calculations. There is a single bathroom with a shower-over-bath and a compact layout across approximately 750 sq ft.

Location strengths include fast broadband, good road and rail links to Nuneaton, Hinckley and Birmingham, nearby supermarkets, green open space and several Ofsted-rated 'Good' schools. The development provides a landscaped frontage and turfed rear garden for outdoor space without heavy maintenance.

A material point: the wider area is classified as very deprived, which may affect resale values and local amenities long-term. The property is part of a new development and is in move-in condition, but purchasers should confirm any applicable service charges and the full Shared Ownership terms before committing.

Property Details

Image Descriptions

Floorplan Description

Rooms

Textual Property Features

Target Audience

AI Tags

Detected Visual Features

Nearby Schools

Nearest Bars And Restaurants

,,,,}

Nearest General Shops

,,}

Nearest Grocery shops

,,}

Nearest Supermarkets

,,}

Nearest Religious buildings

,,}

Nearest Medical buildings

,,,}

Nearest Airports

}

Nearest Leisure Facilities

,,,,}

Nearest Tourist attractions

,,}

Nearest Train stations

,,,,}

Nearest Bus stations and stops

,,,,}

Nearest Hotels

,,}

Tags

Local Market Stats

Similar Properties

Meta

High Res Images

Compatible Images

Low res Images

Thumbnails

Raw Images

High Res Floorplan Images

Compatible Floorplan Images

Low res Floorplan Images

FloorplanImages Thumbnail

Raw Floorplan Images