Ground-floor modern flat with allocated parking and excellent commuter links.
Spacious open-plan living, dining and kitchen, flooded with natural light
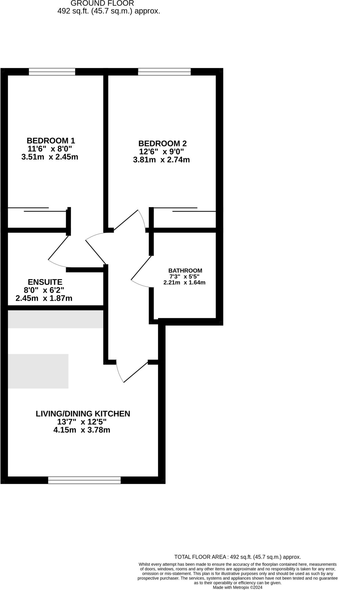
Set on the ground floor of a modern development, this two-double-bedroom apartment offers a bright open-plan living, dining and kitchen space ideal for everyday life and entertaining. The master bedroom benefits from built-in sliding wardrobes and an ensuite shower; the second double also has fitted robes. Allocated parking, bike storage and well-kept communal gardens add practical outdoor space.
The property sits moments from Kirkstall Forge train station and local green spaces, with quick city-centre access — a strong commuter location for professionals and first-time buyers. A long lease (995 years remaining) reduces long-term ownership uncertainty, while integrated appliances and contemporary finishes mean move-in ready convenience.
Buyers should note the property is leasehold with an annual service charge of around £1,104 and a small ground rent (£158 p.a.). The local area records above-average crime and higher deprivation indices; prospective purchasers may wish to check local statistics and consider security measures. Council Tax band B applies.
Overall this is a modern, practical two-bedroom apartment with commuter appeal and low lease risk, suited to buyers seeking a low-maintenance first home or a rental investor wanting straightforward tenancy potential.
2 bedroom flat for sale in Low Lane, Horsforth, Leeds, West Yorkshire, LS18 — £195,000 • 2 bed • 2 bath • 814 ft²
2 bedroom flat for sale in Cornmill View, Horsforth, Leeds, West Yorkshire, UK, LS18 — £165,000 • 2 bed • 1 bath • 696 ft²
2 bedroom apartment for sale in Woodeson Lea, Leeds, LS13 — £145,000 • 2 bed • 1 bath • 665 ft²
3 bedroom terraced house for sale in Horsforde View, Bramley, Leeds, West Yorkshire, LS13 — £325,000 • 3 bed • 2 bath • 1004 ft²
2 bedroom flat for sale in Horsforth Mill, Low Lane, Horsforth, LS18 — £265,000 • 2 bed • 2 bath • 782 ft²
2 bedroom flat for sale in Waters Walk, Apperley Bridge, Bradford, West Yorkshire, BD10 — £156,799 • 2 bed • 2 bath • 667 ft²










































































