Sunny private garden and extension potential close to schools and village amenities.
South-facing garden much larger than local average
Planning permission granted for rear extension (Ref 24/03840/H)
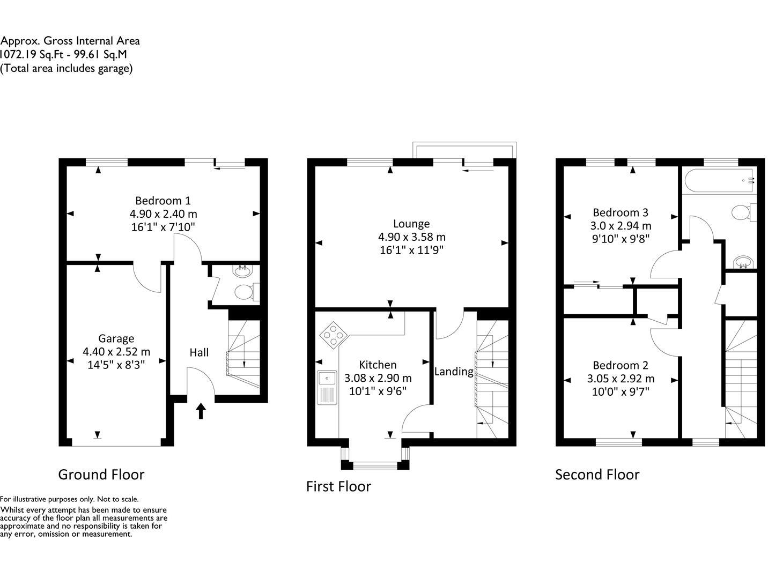
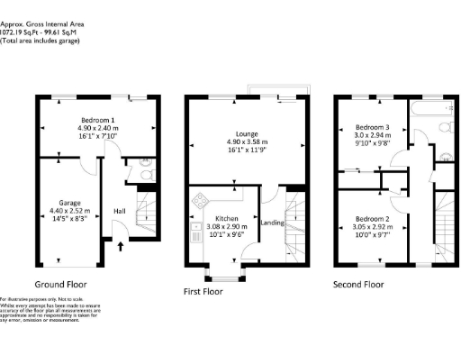
Integral garage plus pedestrian entrance
Chain free — immediate completion possible
Compact internal footprint and small plot size
Single main bathroom serving three bedrooms
Cavity walls assumed uninsulated — may need upgrades
Council tax band above average for the area
Set in the heart of Clifton Village, this light three-bedroom mid-terrace townhouse offers a rare combination of a much larger-than-average south-facing garden and an integral garage. The house is arranged over three floors with bright rooms, recent external re-rendering and new double glazing, making it move-in ready for buyers seeking immediate comfort close to shops, restaurants and top-rated schools.
A key value driver is planning permission (Ref 24/03840/H) for a rear extension over the ground and first floors, creating significant scope to increase living space and resale value. The current layout provides flexible accommodation: garden-facing living areas, a kitchen/breakfast room and two further double bedrooms upstairs. The large sunny garden is an unusual asset in this part of Clifton and suits families or buyers who prioritise outdoor space.
Buyers should note material limitations honestly: the overall plot and footprint are small, internal room sizes are compact and there is a single family bathroom. The house dates from 1967–75 and the cavity walls are assumed to lack insulation, which may mean further energy-efficiency improvements are desirable. Council tax is above average for the area.
This property is offered freehold and chain free, making it straightforward to purchase. It will suit buyers who value central Clifton living, outdoor space and the potential to add value through the approved extension or targeted refurbishment.
4 bedroom end of terrace house for sale in Richmond Dale | Clifton, BS8 — £625,000 • 4 bed • 2 bath • 1203 ft²
3 bedroom semi-detached house for sale in Apsley Road | Clifton, BS8 — £800,000 • 3 bed • 2 bath • 1280 ft²
4 bedroom town house for sale in Princess Victoria Street, Clifton Village, BS8 — £875,000 • 4 bed • 2 bath • 1700 ft²
6 bedroom semi-detached house for sale in Wellington Park | Clifton, BS8 — £1,695,000 • 6 bed • 3 bath • 3757 ft²
4 bedroom terraced house for sale in Princess Victoria Street, Bristol, Somerset, BS8 — £1,250,000 • 4 bed • 3 bath • 2589 ft²
3 bedroom terraced house for sale in Ambra Terrace, Cliftonwood, BS8 — £635,000 • 3 bed • 1 bath • 889 ft²














































