Modern specification, garage parking and garden in a town setting.
Five bedrooms and three bathrooms, configured for family living
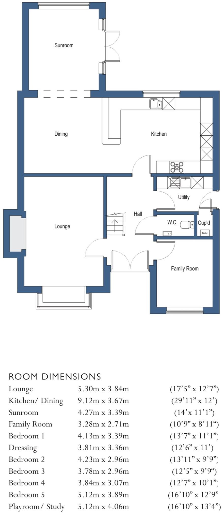
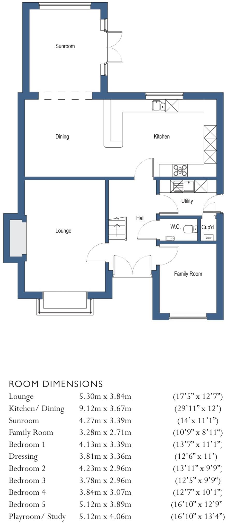
Plot 323 at Ascension View presents a modern five-bedroom detached home designed for family living. The ground floor’s open-plan kitchen and dining area flows into a sunroom with French doors onto a decent rear garden, creating an easy indoor–outdoor layout for entertaining and everyday life. A separate lounge, additional family room and generous utility add flexible living space. The home is new build with a high-quality finish, choice of kitchens and tiles, and backed by a 10-year LABC guarantee.
Practical strengths include an integral double garage, wide cobbled driveway and efficient mains-gas central heating. The property earned industry awards and achieves an EPC B, while fast broadband and excellent mobile signal support home working and streaming. Local schools include several rated Good and one top 10% primary; nearby leisure and playground facilities suit family routines.
Important considerations are stated plainly: the marketed internal area is relatively compact at around 830 sq ft for a five-bedroom layout, so some rooms will be modest in size. The wider neighbourhood records higher-than-average crime levels, which buyers should factor into budget and security decisions despite the home’s many standard security features. The property sits in a suburban town setting rather than a rural retreat.
Overall this is a move-in-ready, award-recognised new build for buyers prioritising modern specification, garage parking and outdoor space. It will suit families who value quality finishes and practical layouts, while those seeking very large individual rooms or a low-crime rural location should consider a viewing with careful local checks.
5 bedroom detached house for sale in Plot 326 - Ascension View, Barton-upon-Humber, North Lincolnshire, DN18 — £469,950 • 5 bed • 3 bath • 1968 ft²
5 bedroom detached house for sale in Plot 340 - Ascension View, Barton-upon-Humber, North Lincolnshire, DN18 — £369,950 • 5 bed • 3 bath • 2164 ft²
3 bedroom detached house for sale in Plot 367 - Ascension View, Barton-upon-Humber, North Lincolnshire, DN18 — £274,950 • 3 bed • 2 bath • 1109 ft²
3 bedroom detached house for sale in Plot 390 - Ascension View, Barton-upon-Humber, North Lincolnshire, DN18 — £274,950 • 3 bed • 2 bath • 1109 ft²
3 bedroom detached house for sale in Plot 391 - Ascension View, Barton-upon-Humber, North Lincolnshire, DN18 — £274,950 • 3 bed • 2 bath • 1109 ft²
5 bedroom detached house for sale in Plot 12 - The Duchess, Kings Grove, Grimsby, DN32 — £409,950 • 5 bed • 3 bath • 1766 ft²






























































