**Standout Features:**
- Spacious five-bedroom detached home
- Three bathrooms for added convenience
- High-quality finishes and modern design
- Open-plan kitchen with sunroom and bi-fold/sliding doors
- LABC Award Winner 2022 and Master Builder Awards 2023
- 10 Year LABC Guarantee and many security features
- Detached garage and ample driveway space
- Excellent mobile signal and fast broadband
- Close to various primary and secondary schools with good ratings
**Potential Concerns:**
- Higher crime rate in the local area
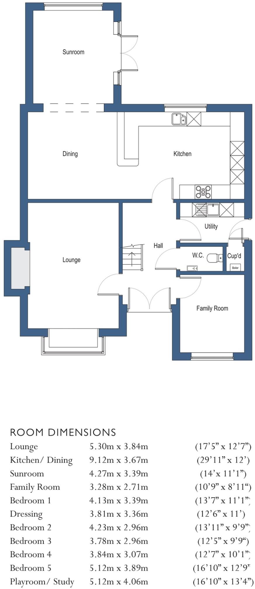
Discover modern family living in this stunning five-bedroom detached home at Plot 326, Ascension View, Barton-upon-Humber. Designed for both comfort and style, the property features a spacious open-plan kitchen and dining area that seamlessly connects to a bright sunroom, perfect for family gatherings or entertaining guests. With three bathrooms, a dedicated lounge, and an additional family room, it offers the versatility to accommodate today's active lifestyles.
Enhancing its appeal, this LABC Award-winning property boasts high-quality finishes, security features, and a detached garage, making it an ideal choice for families looking for both luxury and practicality. The landscaped outdoor space invites endless possibilities for relaxation or play, all nestled in a friendly community within walking distance to local amenities.
However, prospective buyers should note the area has a higher crime rate, which may be a consideration for some. With a combination of modern comforts and future flexibility for renovations, this property offers a unique opportunity for those seeking their forever home. Don’t miss out on this exceptional living experience—schedule your viewing today!
5 bedroom detached house for sale in Plot 323 - Ascension View, Barton-upon-Humber, North Lincolnshire, DN18 — £469,950 • 5 bed • 3 bath • 1941 ft²
5 bedroom detached house for sale in Plot 331 - Ascension View, Barton-upon-Humber, North Lincolnshire, DN18 — £429,950 • 5 bed • 3 bath • 1664 ft²
5 bedroom detached house for sale in Plot 393 - Ascension View, Barton-upon-Humber, North Lincolnshire, DN18 — £434,950 • 5 bed • 3 bath • 1663 ft²
3 bedroom detached house for sale in Plot 336 - Ascension View, Barton-upon-Humber, North Lincolnshire, DN18 — £264,950 • 3 bed • 2 bath • 1109 ft²
4 bedroom detached house for sale in Plot 365 - Ascension View, Barton-upon-Humber, North Lincolnshire, DN18 — £319,950 • 4 bed • 2 bath • 1345 ft²
5 bedroom detached house for sale in Canberra View, Barton-upon-Humber, North Lincolnshire, DN18 — £435,000 • 5 bed • 3 bath • 2368 ft²


































































































