Single-level bungalow with large garden and no onward chain, ideal for downsizers.
One double bedroom bungalow, single-level living
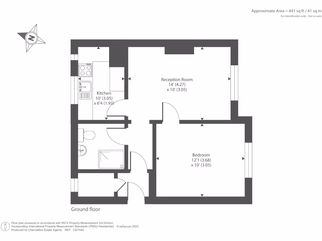
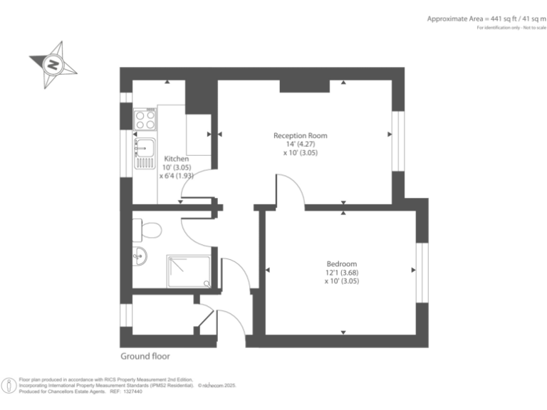
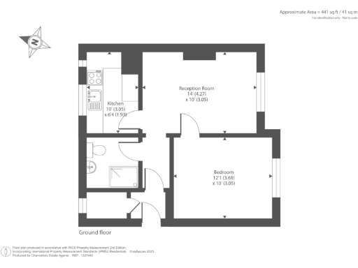
A compact one-bedroom semi-detached bungalow set at the end of a quiet close in Aston, Bampton. Arranged on a single level, the home offers a double bedroom, living room, modern kitchen with integrated appliances, and a bathroom — all within an approx. 441 sq ft footprint. The property is freehold and offered with no onward chain, making it straightforward for a quick move.
Outside, the bungalow sits on a decent plot with a large low-maintenance garden and off-street parking on a pebble driveway. The location benefits from very low crime, fast broadband, good local primary schools and a pleasant small-town, countryside-fringe setting — attractive for downsizers or buyers seeking a single-level home.
Buyers should note the property was built mid-20th century (1950s–60s) and there are reported roof issues which will require inspection and likely repair. The accommodation is average-sized with standard ceiling heights; any purchaser wanting more space would need to consider extension potential subject to planning. Council tax is low and mains gas boiler with radiators provides central heating.
2 bedroom semi-detached bungalow for sale in Cote Road, Aston, OX18 — £370,000 • 2 bed • 1 bath • 827 ft²
3 bedroom bungalow for sale in Calais Dene, Bampton, Oxfordshire, OX18 — £475,000 • 3 bed • 2 bath • 1387 ft²
3 bedroom detached bungalow for sale in Aston, Oxfordshire, OX18 — £560,000 • 3 bed • 2 bath • 1655 ft²
3 bedroom detached bungalow for sale in Marsh Furlong, Aston, OX18 — £530,000 • 3 bed • 2 bath • 1281 ft²
2 bedroom semi-detached bungalow for sale in Witney, Oxfordshire, OX28 — £325,000 • 2 bed • 1 bath • 630 ft²
2 bedroom semi-detached bungalow for sale in Windmill Road, North Leigh, OX29 — £325,000 • 2 bed • 1 bath • 802 ft²






















































































