Single-level home with garden and driveway, ready for thoughtful updating.
Two double bedrooms, single-storey layout
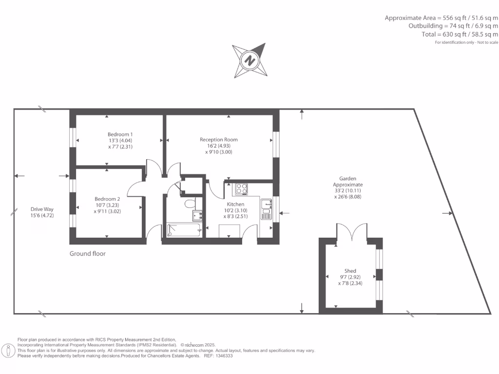
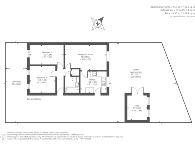
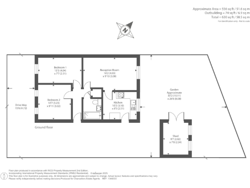
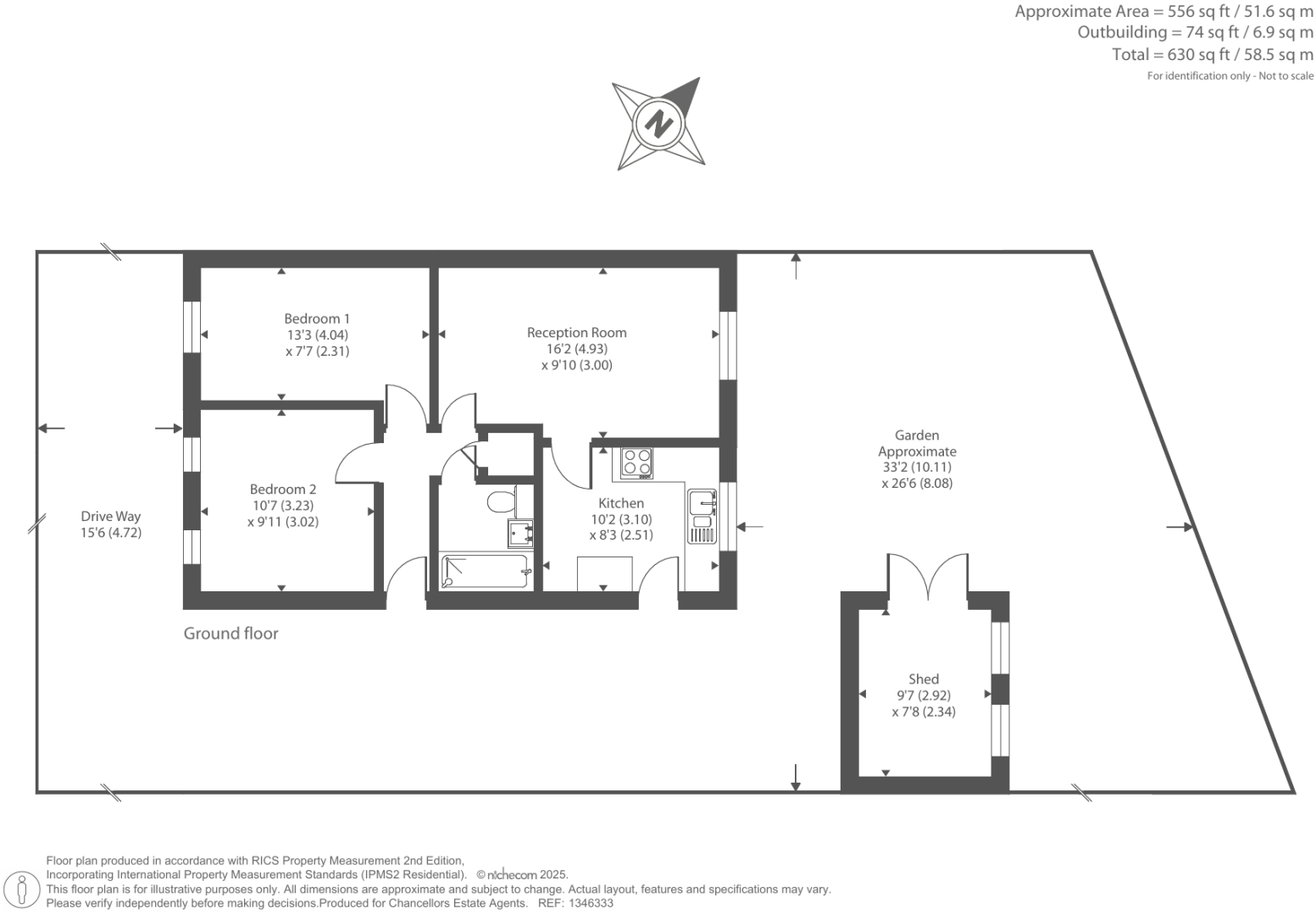
Compact and practical, this two-bedroom semi-detached bungalow sits on Quarry Road in a quiet, comfortable suburb of Witney. The single-storey layout makes everyday living easy, with two double bedrooms, a living room, kitchen and a private rear garden that captures afternoon sun. A wide driveway provides multiple off-street parking spaces.
The property offers clear scope to add value: at about 630 sq ft there is potential to extend subject to planning, and the plot could suit a modest rear or side extension. It’s freehold, on mains gas with a boiler and radiators, and in a very low-crime, very affluent neighbourhood with good local schools and fast broadband.
The bungalow needs updating. Built in the late 1960s/early 1970s, the cavity walls are assumed uninsulated, the double glazing install date is unknown, and the exterior shows typical 1970s wear — buyers should expect modernization and potential energy-efficiency improvements. These works create an opportunity for a buyer to personalize the home and improve long-term running costs.
Well placed for local amenities — shops, playground, post office and schools — this property will suit someone looking to downsize, retire, or invest in a manageable, single-level home with scope to enhance value through renovation and extension (subject to planning). Flood risk is nil and council tax is affordable, simplifying ongoing costs.
2 bedroom semi-detached bungalow for sale in Quarry Road, Witney, Oxfordshire, OX28 — £290,000 • 2 bed • 1 bath • 548 ft²
3 bedroom bungalow for sale in Tarrant Avenue, Witney, Oxfordshire, OX28 — £375,000 • 3 bed • 1 bath • 887 ft²
2 bedroom semi-detached bungalow for sale in Quarry End, Begbroke, OX5 — £385,000 • 2 bed • 1 bath • 748 ft²
2 bedroom detached bungalow for sale in Beech Road, Witney, OX28 — £385,000 • 2 bed • 1 bath • 888 ft²
2 bedroom detached bungalow for sale in Sandy Lane, Southmoor, OX13 — £295,000 • 2 bed • 1 bath • 574 ft²
3 bedroom detached bungalow for sale in Beech Road, Witney, OX28 — £345,000 • 3 bed • 1 bath • 815 ft²


























































































