Chain-free four-bed needing modernisation in top school catchment, with garage and parking.
Chain free four-bedroom mid-terrace with Tudor-style bay window
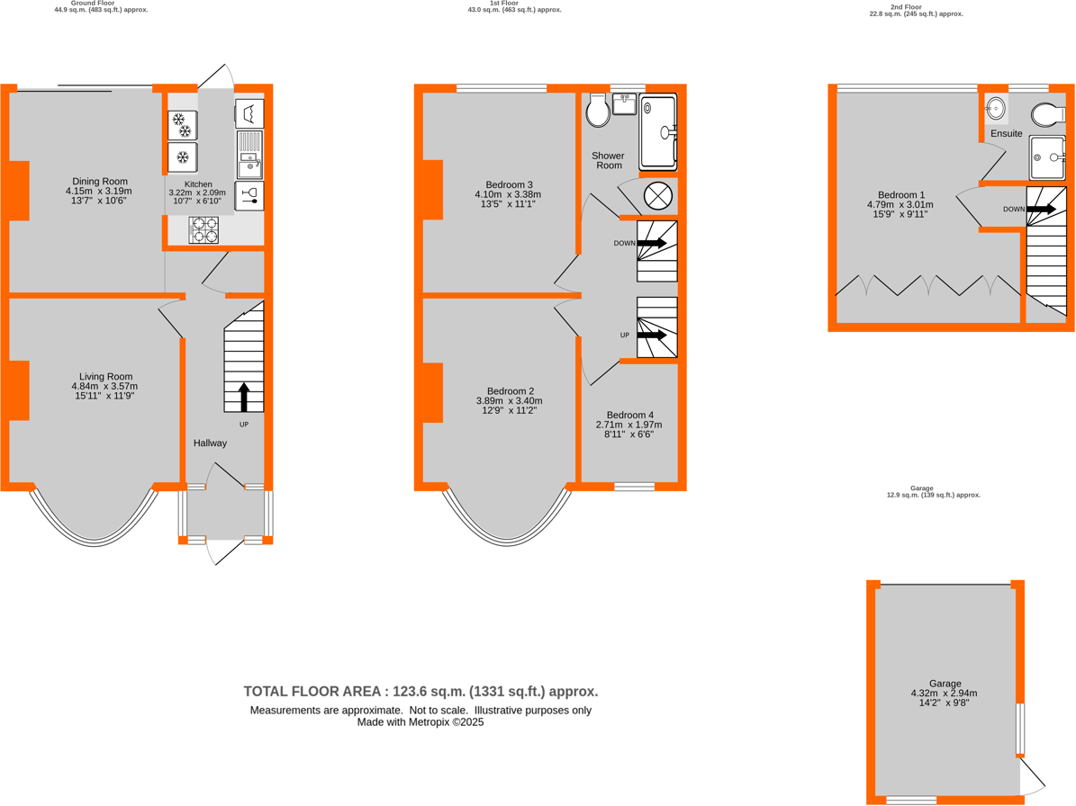
Set on a quiet, well-regarded street close to several outstanding schools, this four-bedroom mid-terrace Tudor‑style home offers significant scope for a growing family. The layout includes two reception rooms, a kitchen with base and wall units, three first-floor bedrooms plus a loft bedroom with ensuite, and an expansive rear garden. Off-street parking for two cars and a detached garage to the rear add useful storage and parking convenience.
The house is chain free and presents a clear opportunity to modernise and personalise: rooms are generous, the front living room benefits from a bay window and chimney breast, and the dining room opens onto the garden via sliding doors. The property is solid brick (likely uninsulated as-built) with double glazing and gas central heating via boiler and radiators — a practical base for improvement works and potential extension subject to consent.
Buyers should be aware this home requires full modernisation throughout. Cosmetic and likely more significant upgrades will be needed, and the property may benefit from improved insulation and kitchen/bathroom renewal. Council tax is high. For buyers seeking a turn-key home, the current condition will be a drawback; for renovators or families wanting to add value in a sought-after school catchment, this offers strong potential.
Location is a key draw: West Wickham station is within walking distance, local shops and supermarkets are close by, and crime levels are very low. This is a practical family location with good broadband and mobile signal, generous plot size and easy access to transport and amenities.
4 bedroom semi-detached house for sale in Braemar Gardens, West Wickham, BR4 — £750,000 • 4 bed • 1 bath • 1361 ft²
3 bedroom semi-detached house for sale in Goodhart Way, West Wickham, BR4 — £650,000 • 3 bed • 1 bath • 1350 ft²
3 bedroom end of terrace house for sale in Langley Way, West Wickham, BR4 — £600,000 • 3 bed • 1 bath • 1075 ft²
3 bedroom detached house for sale in Hayes Chase, West Wickham, BR4 — £825,000 • 3 bed • 1 bath • 1029 ft²
4 bedroom terraced house for sale in Silver Lane, West Wickham, BR4 — £650,000 • 4 bed • 1 bath • 1087 ft²
3 bedroom terraced house for sale in Langley Way, West Wickham, BR4 — £600,000 • 3 bed • 1 bath • 1077 ft²










































































