Sunlit rooms, modern kitchen, and small rear garden near local amenities.
Victorian mid-terrace with period brick exterior
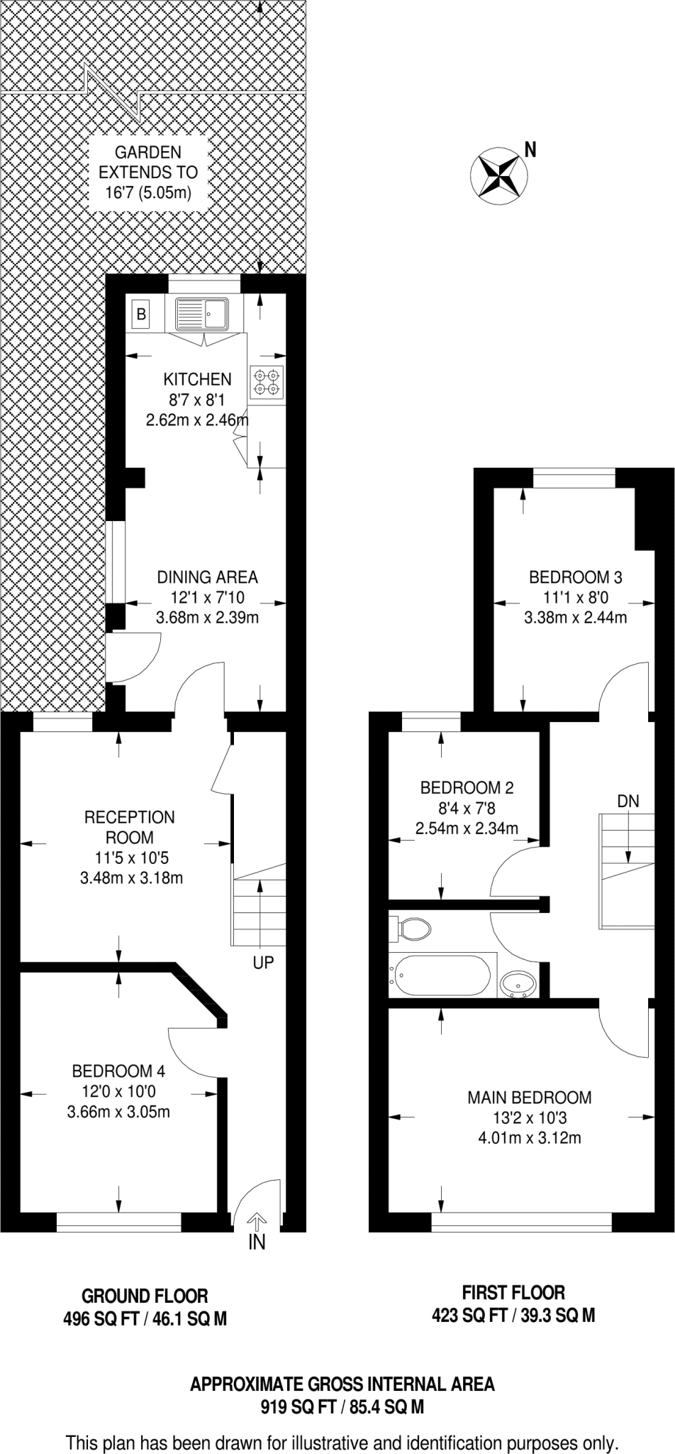
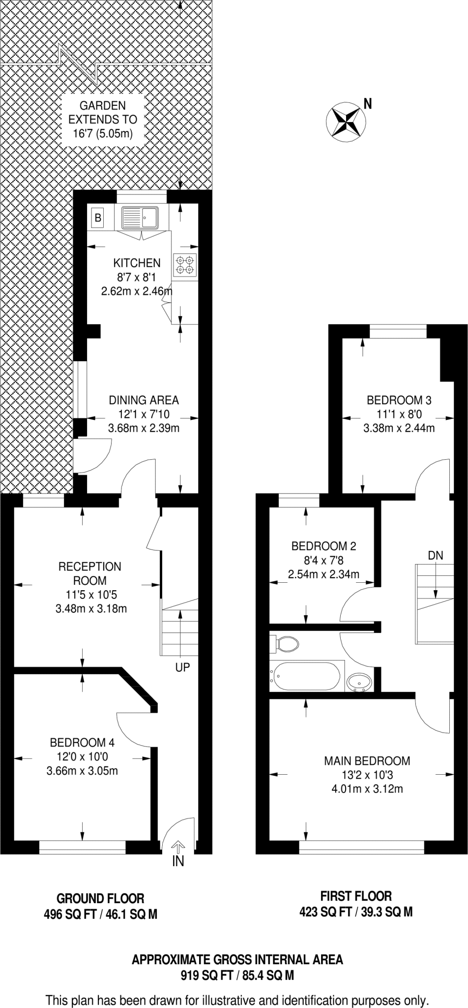
This well-presented Victorian terraced house offers comfortable living across multiple floors, suited to growing families or buyers seeking rental potential. Interiors are bright and sunlit, with a separate reception room and a spacious modern kitchen with dining space for everyday family life.
The property provides four bedrooms and a sleek bathroom, all arranged within approximately 919 sq ft. There is useful storage throughout and a small rear garden for outdoor use. Constructed in the early 20th century with solid brick walls, the house retains period character while presenting contemporary finishes inside.
Buyers should note practical considerations: the home has only one bathroom and the overall plot and footprint are compact. The building’s solid brick walls are assumed to have no insulation, so upgrading thermal performance may be needed. The immediate area shows high recorded crime levels and local deprivation indicators, which may influence suitability for some purchasers or investors.
Location benefits include easy walking access to local amenities along Barking Road and nearby transport links, plus a wide range of shops, leisure facilities and several well-rated primary and secondary schools. This is a practical family home or refurbishment opportunity for buyers seeking space in Canning Town with scope to improve energy efficiency and layout.
4 bedroom terraced house for sale in MORLEY ROAD, Stratford, London, E15 — £700,000 • 4 bed • 3 bath • 1308 ft²
4 bedroom terraced house for sale in Romford Road, Forest Gate, London, E7 — £685,000 • 4 bed • 2 bath • 1317 ft²
4 bedroom terraced house for sale in Claughton Road, London, E13 — £575,000 • 4 bed • 1 bath • 1174 ft²
4 bedroom terraced house for sale in Wilkinson Road, London, E16 — £450,000 • 4 bed • 1 bath • 1152 ft²
3 bedroom detached house for sale in Newham Way, Plaistow, London, E16 — £550,000 • 3 bed • 2 bath • 1000 ft²
4 bedroom terraced house for sale in Chobham Road, Stratford, E15 — £775,000 • 4 bed • 2 bath • 1382 ft²


































































































































































































































































































































































































































































































































































