Family-friendly house near top-rated schools and transport links.
Four bedrooms across three floors, generous room proportions
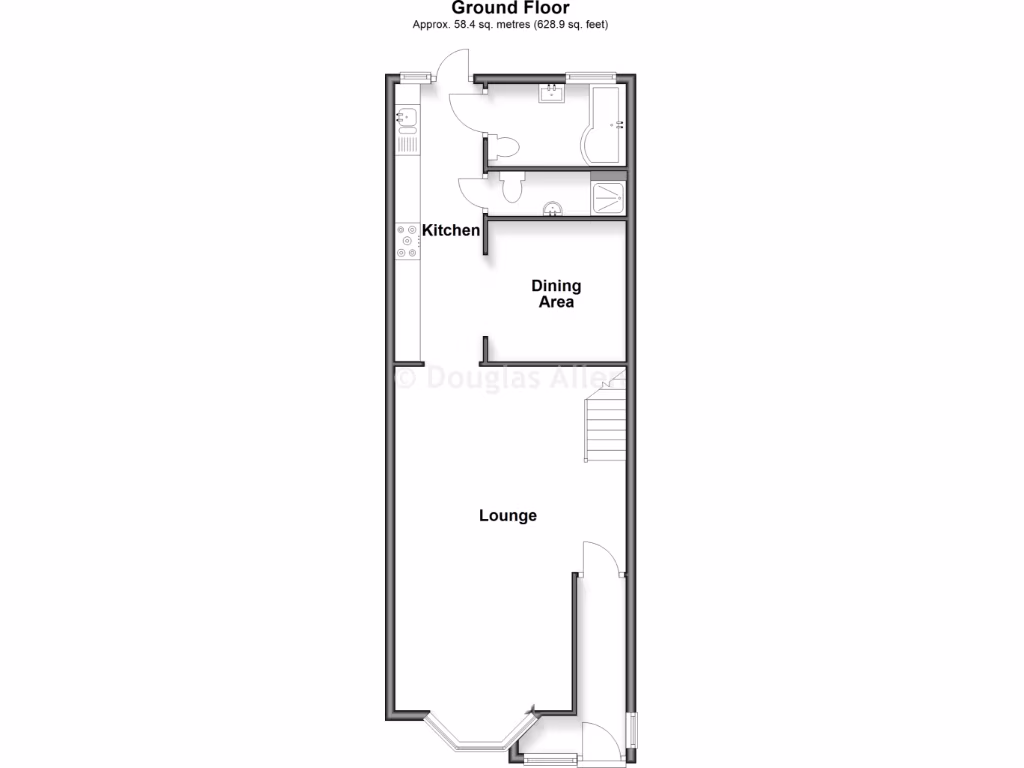
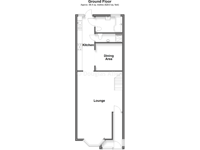
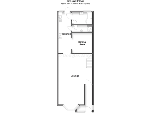
Set over three floors, this four-bedroom Victorian terrace offers spacious family accommodation close to schools and transport. The home’s modern galley kitchen and separate dining area create a practical ground-floor living arrangement, while a low-maintenance rear garden provides outdoor space without heavy upkeep. Broadband and mobile signals are strong, and the freehold tenure simplifies ownership.
Bedrooms are well proportioned for a family; the principal room measures over 14ft. The property totals around 1,174 sq ft and includes a shower room and separate bathroom. Local schools include several Good-rated primaries and an Outstanding secondary, making the location attractive to families.
Buyers should note material considerations: there is only one bathroom serving four bedrooms, the plot is small, and the house sits in an area classed as deprived with above-average local crime. The property is a solid-brick 1930s build with no assumed wall insulation, so energy performance and heating costs may be higher than modern standards. Some updating or insulation work could add comfort and value.
Overall this is a practical, well-located family home with clear potential for improvement. It suits buyers looking for space and proximity to schools and transport, or investors seeking a borough property to upgrade and let.
4 bedroom terraced house for sale in Claughton Road, London, E13 — £380,000 • 4 bed • 1 bath • 1174 ft²
4 bedroom terraced house for sale in Canning Town, Canning Town, London, E16 — £540,000 • 4 bed • 1 bath • 919 ft²
4 bedroom end of terrace house for sale in Nine Acres Close, London, E12 — £450,000 • 4 bed • 1 bath • 1104 ft²
4 bedroom end of terrace house for sale in Claughton Road Plaistow, London, E13 — £475,000 • 4 bed • 1 bath • 1002 ft²
4 bedroom detached house for sale in Cumberland Road, London, E13 — £462,500 • 4 bed • 3 bath • 1046 ft²
4 bedroom terraced house for sale in Second Avenue, London - CHAIN FREE!, E12 — £550,000 • 4 bed • 2 bath • 1452 ft²


















































